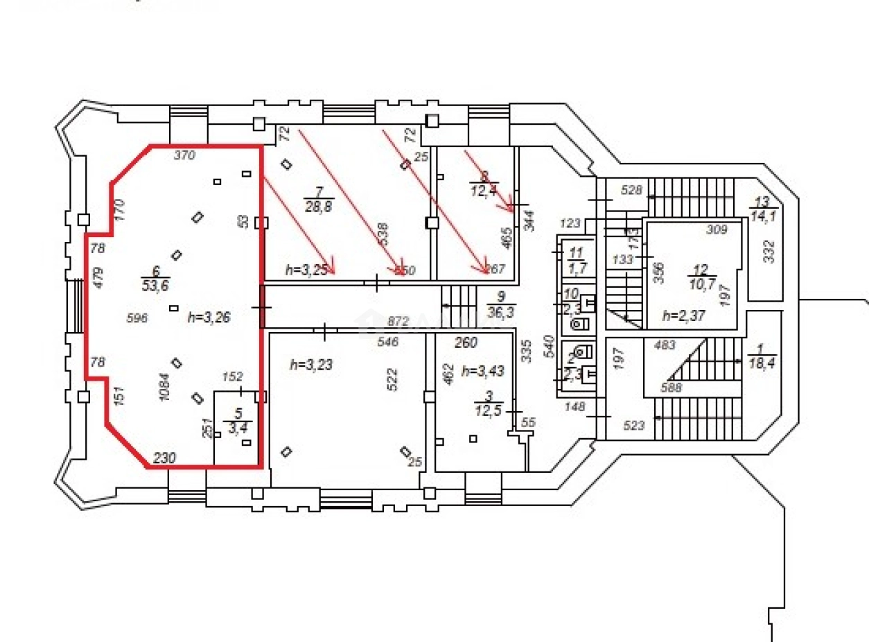
Сдается Офис, 57 м²
Россия, Новосибирск, Советская улица, 23
Площадь Ленина
5 мин.
57 м²
Общая площадь
Общий
Вход в помещение
Свободный
Доступ в помещение
7 из 7
Этаж
Описание
В тихом центре Новосибирска предлагается к аренде помещение свободного назначения в деловом-центре "Академия".
Расположение: центральная часть города, поблизости находятся остановки общественного транспорта, в шаговой доступности станция метро "Площадь Ленина", что обеспечивает удобный доступ сотрудникам и клиентам. Помещение оборудовано системой кондиционирования воздуха, охранно-пожарной сигнализацией, поэтажная система видеонаблюдения, имеется лифт, санузел на этаже.
В здании работают предприятия торговли, общественного питания, сферы услуг.
Предусмотрен обеспечительной платеж в размере 100 % месячной арендной ставки.
Об объекте
Общая площадь
57 м²
Этаж
7
Электрическая мощность
7 кВт
Ремонт
Косметический
Вход в помещение
Общий
Доступ в помещение
Свободный
Удобства
Кондиционер
Охрана
Пожарная сигнализация
Условия аренды
Коммунальные платежи
Включены
Минимальный срок аренды
Не указан
Счётчики
Включены
О здании
Тип коммерции
Бизнес-центр
Материал постройки
Кирпичный
Отопление
Центральное
Этажей в доме
7
Пассажирских лифтов
1
Расположение
Россия, Новосибирск, Советская улица, 23
Площадь Ленина
5 мин.
Площадь Гарина-Михайловского
20 мин.
Красный проспект
20 мин.
Октябрьская
20 мин.
Сибирская
22 мин.
Маршала Покрышкина
28 мин.
Речной вокзал
29 мин.
Гагаринская
4 мин.
24 000 ₽/м² в год
Комиссия
Без комиссии
Залог
114 000 ₽
Налог
НДС
114 000 ₽/мес.








