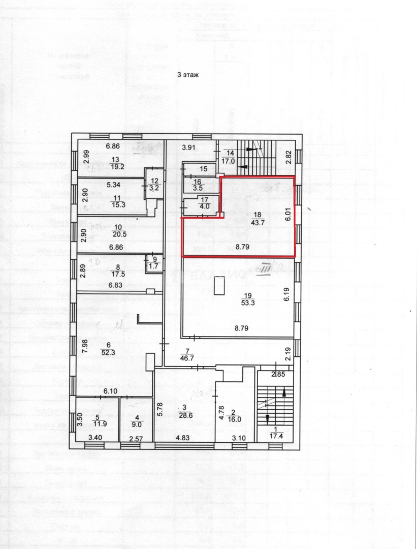
Сдается Офис, 43.7 м²
Россия, Новосибирск, улица Писарева, 108
43.7 м²
Общая площадь
Отдельный
Вход в помещение
Свободный
Доступ в помещение
3 из 3
Этаж
Описание
Предлагается в аренду офисное помещение на третьем этаже административного здания.
Здание расположено рядом с улицей Ипподромская, в 5-ти минутах ходьбы от остановки общественного транспорта.
Открытая планировка. Два окна.
На входе в здание установлен домофон, что обеспечивает безопасность за счет контроля доступа в офисы.
На прилегающей к зданию территории организована парковка для автомобилей.
Дополнительно оплачивается электроэнергия по счетчику.
Предусмотрен обеспечительный платеж в размере месяца аренды.
Об объекте
Общая площадь
43.7 м²
Этаж
3
Электрическая мощность
5 кВт
Ремонт
Евро
Вход в помещение
Отдельный
Доступ в помещение
Свободный
Удобства
Интернет
Кондиционер
Охрана
Пожарная сигнализация
Условия аренды
Коммунальные платежи
Включены
Минимальный срок аренды
Не указан
Счётчики
Отдельно
О здании
Тип коммерции
Бизнес-центр
Материал постройки
Панельный
Отопление
Центральное
Этажей в доме
3
Расположение
Россия, Новосибирск, улица Писарева, 108
13 200 ₽/м² в год
Комиссия
Без комиссии
Залог
48 070 ₽
Налог
УСН
48 070 ₽/мес.










