Купить дом на улице 1-я Речная в Новосибирской области
Россия, Новосибирский район, Мичуринский сельсовет, садовое товарищество Элитное-1, 1-я Речная улица
103.9 м²
Площадь дома
7.5 сот
Площадь участка
Деревянный
Материал постройки
2
Этажей
Описание
Цена снижена на 1 миллион в связи со срочным переездом!!!
Первая линия от воды!! Хороший берег, галька.
Дом построен из бруса -150, (лес Сузун). Утеплитель плиточный Урса 10 и отделан облицовочным кирпичем.
Оснащён всеми коммуникациями: электричеством, водоснабжением и газом. Отапливается индивидуальным
котлом, что гарантирует тепло и уют в любое время года.
Крыша из металлочерепицы обеспечивает надёжную защиту от непогоды.
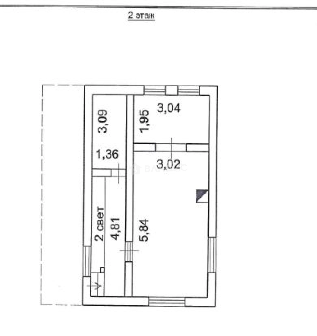
На первом этаже кухня, гостиная с камином, спальня, кладовая, просторный холл ( высота холла до 2 этажа около 10 м).
На втором этаже зал, теплая лоджия с двумя окнами, кладовая. Все комнаты дома обшиты внутри блок-хаусом(
лиственница). Дом очень уютный!!! Красивый вид из окон.
Баня с мансардой ( 58.14) м2: сауна, душевая, комната отдыха, есть стиральная машина. На 2ом этаже-
мансарде установлен бойлер на 100л.
Гараж кирпичный 20х22, газоблок, внутренняя и внешняя штукатурка и обложен кирпичём.
В подвале: скважина, газ центральный, отопление автономное, два септика.
В доме сделан хороший ремонт ,остается мебель, поэтому можно сразу заселиться и наслаждаться природой!
Участок — 7,5 соток, ухоженный, дорожки отделаны керамогранитной плиткой. Имеются посадки: яблоня,
вишня, облепиха, смородина, малина и т.д.
Расположение дома идеально для тех, кто ценит спокойствие и природу, но при этом хочет иметь быстрый доступ
к городской инфраструктуре. До города всего 5 км по асфальтированной дороге. Рядом есть всё необходимое :
магазины, школа, детский сад, и спортивный клуб.
Документы все в собственности, один продавец.
Показ по предварительной договоренности.
О доме
Год постройки
2013
Этажей в доме
2
Общая площадь
103.9 м²
Жилая площадь
69 м²
Площадь кухни
15 м²
Площадь комнат
20+10+15+14+ 10 м²
Материал постройки
Деревянный
Материал перекрытий
Деревянные
Материал кровли
Металлочерепица
Отопление
Индивидуальный котел
Об участке
Площадь участка
7.5 сот.
Статус участка
Садоводство
Электричество
Есть
Газ
Есть
Водоснабжение
Есть
Гараж
Есть
Подъезд к участку
Асфальт
Расположение
Россия, Новосибирский район, Мичуринский сельсовет, садовое товарищество Элитное-1, 1-я Речная улица
Ипотечный калькулятор
Заполните 1 анкету — получите предложения от десятков банков на специальных условиях
Программа ипотеки
Стоимость жилья, ₽
Первый взнос, ₽
Срок кредита
от 5.75%
Ставка
от 65 994 ₽
Платеж в месяц
Расчёт носит информационный характер и не является публичной офертой
Предложите свою цену
10 490 000 ₽
100 962 ₽/м²


















































