Купить дом на улице 23-я в Микрорайоне Гармония в Новосибирской области
Россия, Новосибирский район, Каменский сельсовет, микрорайон Гармония, 23-я улица
159.9 м²
Площадь дома
4 сот
Площадь участка
Пеноблок
Материал постройки
2
Этажей
Описание
В продаже просторный двухэтажный коттедж в коттеджном поселке Гармония. 20 минут до станции метро Березовая Роща. Идеальное место для комфортного проживания большой семьи вдали от городской суеты
Расположен в экологически чистом месте, рядом лес. Он может стать домом Вашей мечты
Въезд через шлагбаум, возможно круглогодичное проживание, дороги чистят. Для детей организован школьный автобус. Газ по улице, возможно оперативное подключение.
Комплектация данного объект:
-Фасад декоративная щтукатурка
- Стены сибит 400 ( гарантирует тепло в доме )
-Внутренние перегородки сибитные
-Фундамент: монолитная плита-это большая прочность, устойчивость к просадке
-Перекрытие дома утеплено базальтовым волокном 200 мм,
-Крыша утеплена, покрыта металлочерепицей
- Окна 5-ти камерные с теплоотражающим покрытием дорогостоящие
-Дверь с терморазрывом
- Скважина стоит отдельно от дома с колодцем
-Канализационный колодец 6 куб м
-Электричество, вода и канализация заведены в дом
Дом просторный, светлый.
Очень удачная , эргономичная планировка
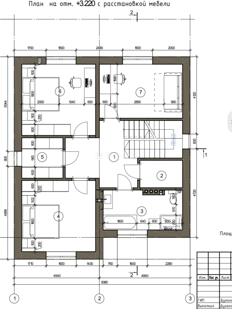
1 этаж: гостиная столовая 39,4 кв из которой предусмотрен выход на террасу + гостевая комната 11,74 кв.м, санузел, котельная
2 этаж-не мансардный, полноценная высота: три спальни, просторная ванная комната 8,73 кв с окном, кладовая и гардеробная
Высота потолков 3.3 метра, что придает ощущение простора и свободы
Участок ровный. Дом стоит на возвышенности, исключено подтопление .
Дом построен для себя, не на продажу. Продается практически по себестоимости , все чеки и проект в наличии
Покажу в любое удобное для Вас время
Один взрослый собственник, обременений нет.
О доме
Год постройки
2024
Этажей в доме
2
Общая площадь
159.9 м²
Жилая площадь
54.5 м²
Площадь кухни
39.4 м²
Площадь комнат
14.97+14,97+12,79+11,77 м²
Материал постройки
Пеноблок
Материал перекрытий
Ж/б плиты
Материал кровли
Железо
Высота потолков
330 м
Об участке
Площадь участка
4 сот.
Статус участка
Индивидуальное жилищное строительство
Электричество
Есть
Водоснабжение
Есть
Канализация
Есть
Без благоустройства участка
Есть
Подъезд к участку
Грунтовка
Расположение
Россия, Новосибирский район, Каменский сельсовет, микрорайон Гармония, 23-я улица
Ипотечный калькулятор
Заполните 1 анкету — получите предложения от десятков банков на специальных условиях
Программа ипотеки
Стоимость жилья, ₽
Первый взнос, ₽
Срок кредита
от 5.75%
Ставка
от 43 409 ₽
Платеж в месяц
Расчёт носит информационный характер и не является публичной офертой
Николаева Ольга
Агент по недвижимости
Предложите свою цену
6 900 000 ₽
43 152 ₽/м²






















