Купить дом на улице Центральная в Новосибирской области
Россия, Новосибирский район, Толмачёвский сельсовет, деревня Алексеевка, Центральная улица
100 м²
Площадь дома
8 сот
Площадь участка
Кирпичный
Материал постройки
1
Этажей
Описание
Закрытая огороженная территория На территории будет 10 аналогичных домов с другими планировками и площадью Все дома сдаются одновременно, так что есть возможность выбрать
Участок площадью 8 соток с асфальтовым подъездом идеально подходит для строительства дополнительных построек или озеленения. Дом подключён к центральным коммуникациям: электроснабжение, водоснабжение, газ и канализация. Центральное отопление обеспечивает комфорт в любое время года. На данный момент идет завершение отделочных работ
White box ремонт даёт возможность воплотить любые дизайнерские идеи. Благоустроенная инфраструктура и транспортная доступность делают этот дом идеальным выбором для тех, кто ценит спокойствие и уют, но при этом хочет оставаться на связи с городской жизнью. Готовы к диалогу. Если интересно делайте встречное предложение ВНИМАНИЕ!!! Предлагаем разные варианты расчетов :семейная ипотека сельская ипотека, ,наличный расчет и беспроцентная рассрочка на 2 года ЗА НАЛИЧНЫЙ РАСЧЕТ СПЕЦИАЛЬНЫЕ ПРЕДЛОЖЕНИЯ
Звоните нам прямо сейчас, чтобы узнать больше и записаться на просмотр! Документы готовы к сделке Мы гарантируем безопасную сделку и юридическую поддержку нашим клиентам. Поможем одобрить ипотеку с сниженной ставкой.
О доме
Год постройки
2025
Этажей в доме
1
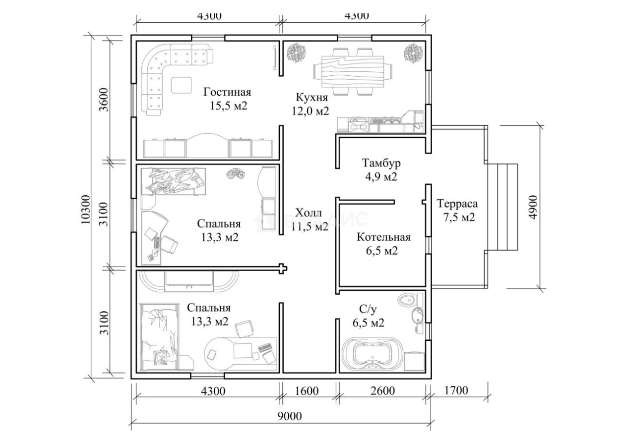
Общая площадь
100 м²
Жилая площадь
60 м²
Площадь кухни
15 м²
Площадь комнат
20+15+25 м²
Материал постройки
Кирпичный
Материал перекрытий
Металлические
Материал кровли
Металлочерепица
Высота потолков
3.2 м
Об участке
Площадь участка
8 сот.
Статус участка
Индивидуальное жилищное строительство
Электричество
Есть
Газ
Есть
Водоснабжение
Есть
Канализация
Есть
Без благоустройства участка
Есть
Подъезд к участку
Асфальт
Расположение
Россия, Новосибирский район, Толмачёвский сельсовет, деревня Алексеевка, Центральная улица
Ипотечный калькулятор
Заполните 1 анкету — получите предложения от десятков банков на специальных условиях
Программа ипотеки
Стоимость жилья, ₽
Первый взнос, ₽
Срок кредита
от 5.75%
Ставка
от 37 118 ₽
Платеж в месяц
Расчёт носит информационный характер и не является публичной офертой
Предложите свою цену
5 900 000 ₽
59 000 ₽/м²






































