Купить дом на улице Данилова в Новосибирской области
Россия, Новосибирская область, Мошковский район, село Ташара, улица Данилова, 75
95.1 м²
Площадь дома
12 сот
Площадь участка
Деревянный
Материал постройки
2
Этажей
Описание
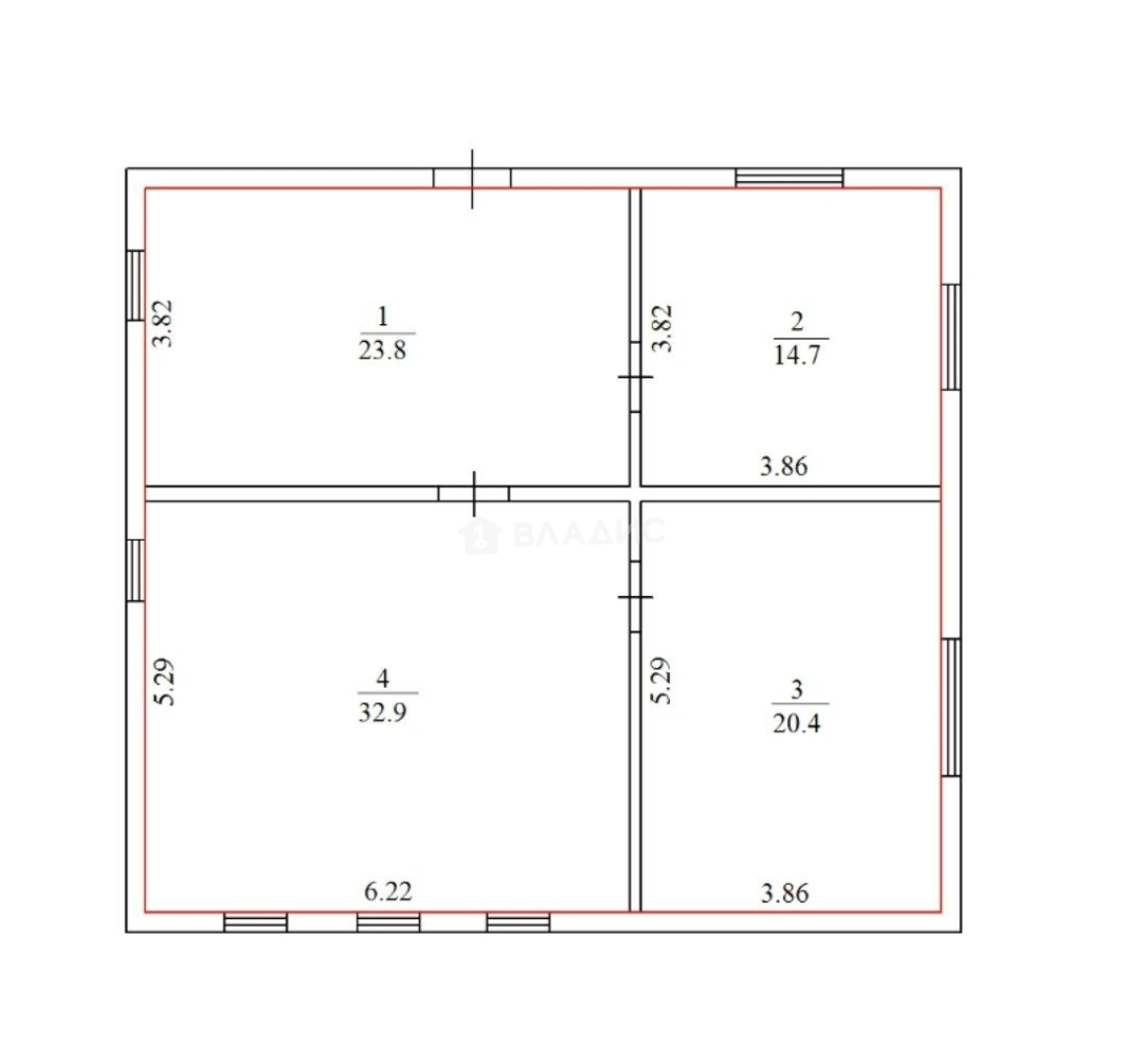
Дом построен в 1980 году, общая площадь 1 этажа составляет 95,1 кв. м, из которых жилая площадь — 60 кв. м, а площадь кухни — 10 кв. м. Дом двухэтажный, с деревянными перекрытиями и кровлей из железа. Высота потолков — 2,5 метра. Участок площадью 12 соток + 10 соток (входит в стоимость) имеет статус Земли населенных пунктов, личное подсобное хозяйство, а подъезд к нему асфальтирован.
Коммуникации к дому подведены: есть электричество, водоснабжение (скважина) и канализация. Отопление отсутствует, что даёт возможность новым владельцам выбрать наиболее подходящий для них вариант. Дом подходит для круглогодичного проживания.
На участке имеется небольшой жилой дом 30кв.м. из бруса, электричество заведено, воды в доме нет.
Это идеальный выбор для тех, кто хочет начать своё хозяйство или просто насладиться тишиной и спокойствием загородной жизни. Не упустите шанс стать владельцем этого уютного дома!
Возможен торг!!!
Позвоните нам прямо сейчас, чтобы узнать больше и записаться на просмотр.
Мы гарантируем безопасную сделку и юридическую поддержку нашим Клиентам.
О доме
Год постройки
1980
Этажей в доме
2
Общая площадь
95.1 м²
Жилая площадь
60 м²
Площадь кухни
10 м²
Площадь комнат
0 м²
Материал постройки
Деревянный
Материал перекрытий
Деревянные
Материал кровли
Железо
Высота потолков
2.5 м
Об участке
Площадь участка
12 сот.
Статус участка
Личное подсобное хозяйство
Электричество
Есть
Водоснабжение
Есть
Канализация
Есть
Без благоустройства участка
Есть
Подъезд к участку
Асфальт
Расположение
Россия, Новосибирская область, Мошковский район, село Ташара, улица Данилова, 75
Ипотечный калькулятор
Заполните 1 анкету — получите предложения от десятков банков на специальных условиях
Программа ипотеки
Стоимость жилья, ₽
Первый взнос, ₽
Срок кредита
от 5.75%
Ставка
от 14 470 ₽
Платеж в месяц
Расчёт носит информационный характер и не является публичной офертой
Предложите свою цену
2 300 000 ₽
24 185 ₽/м²

















