3-комн. квартира · 87.4 pм² · 3/10 эт.
Россия, Новосибирск, Плющихинская улица, 1
Золотая нива
5 мин.
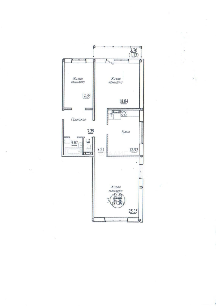
87.39 м²
Общая площадь
56.52 м²
Жилая площадь
12.92 м²
Площадь кухни
3 из 10
Этаж
Описание
Дом введен в эксплуатацию, выдают ключи, можно заходить на ремонт.
Имеется подсобное помещение 8 кв.м, находящееся рядом с входом в квартиру на этом же этаже. В подсобном помещении есть окно, радиатор, что дает возможность использовать его как дополнительную комнату.
Развитая инфраструктура: в пешей доступности достаточное количество продуктовых магазинов, кафе, аптек. Рядом с домом находятся детские сады, школы, что делает эту квартиру идеальным выбором для семей с детьми. Просторный двор. Хорошая транспортная доступность - рядом с домом расположена остановка общественного транспорта, с которой можно легко добраться в любую точку города.
Один взрослый собственник.
О квартире
Общая площадь
87.39 м²
Жилая площадь
56.52 м²
Площадь кухни
12.92 м²
Площадь комнат
18,84+12,33+25,35 м²
Подъезд
1
Этаж
3
Расположение квартиры
угловая
Окна выходят
На улицу
Раздельных санузлов
1
Ремонт
Без отделки
О доме
Год постройки
2019
Этажность
10
Количество подъездов
2
Материал постройки
Панельный
Материал перекрытий
Ж/б плиты
Отопление
Центральное
Пассажирских лифтов
1
Парковка
Наземная
Расположение
Россия, Новосибирск, Плющихинская улица, 1
Золотая нива
5 мин.
Октябрьская
6 мин.
Речной вокзал
6 мин.
Березовая роща
7 мин.
Маршала Покрышкина
8 мин.
Площадь Ленина
8 мин.
Сибирская
9 мин.
Ипотечный калькулятор
Заполните 1 анкету — получите предложения от десятков банков на специальных условиях
Программа ипотеки
Стоимость жилья, ₽
Первый взнос, ₽
Срок кредита
от 5.75%
Ставка
от 35 168 ₽
Платеж в месяц
Расчёт носит информационный характер и не является публичной офертой
Ширинов Руслан
Руководитель отдела
Предложите свою цену
5 590 000 ₽
63 966 ₽/м²



















