Продается 3-комн. квартира, 68.9 м²
Россия, Московская область, Одинцово, микрорайон Клубничное Поле, 10
Пыхтино
11 мин.
68.9 м²
Общая площадь
43.2 м²
Жилая площадь
5.6 м²
Площадь кухни
9 из 24
Этаж
Описание
Проектом запланированы квартиры различных площадей и планировок от 20 до 92 квадратных метров. Кроме того, будут представлены квартиры с лоджиями-террасами на последних этажах. Квартиры передаются дольщикам с чистовой отделкой и без отделки.
Для автовладельцев предусмотрен подземный паркинг. Также запроектированы кладовые помещения для хранения колясок и велосипедов. Проектом предусмотрено создание уютного закрытого двора, свободного от автомобилей. Все придомовые территории благоустроены и озеленены по авторскому проекту бюро ARTEZA, предусмотрены места для отдыха с гамаками и лежаками, пешеходные аллеи, игровые площадки и уличные гимнастические комплексы.
Жилой комплекс «Одинград» — расположен в микрорайоне Одинцово с развитой инфраструктурой. В пешей доступности находятся Детский парк и Центральный пруд. Выезд на МКАД находится в 10 минутах по платной трассе М1. Метро «Славянский бульвар» находится в 30 минутах транспортом.
О квартире
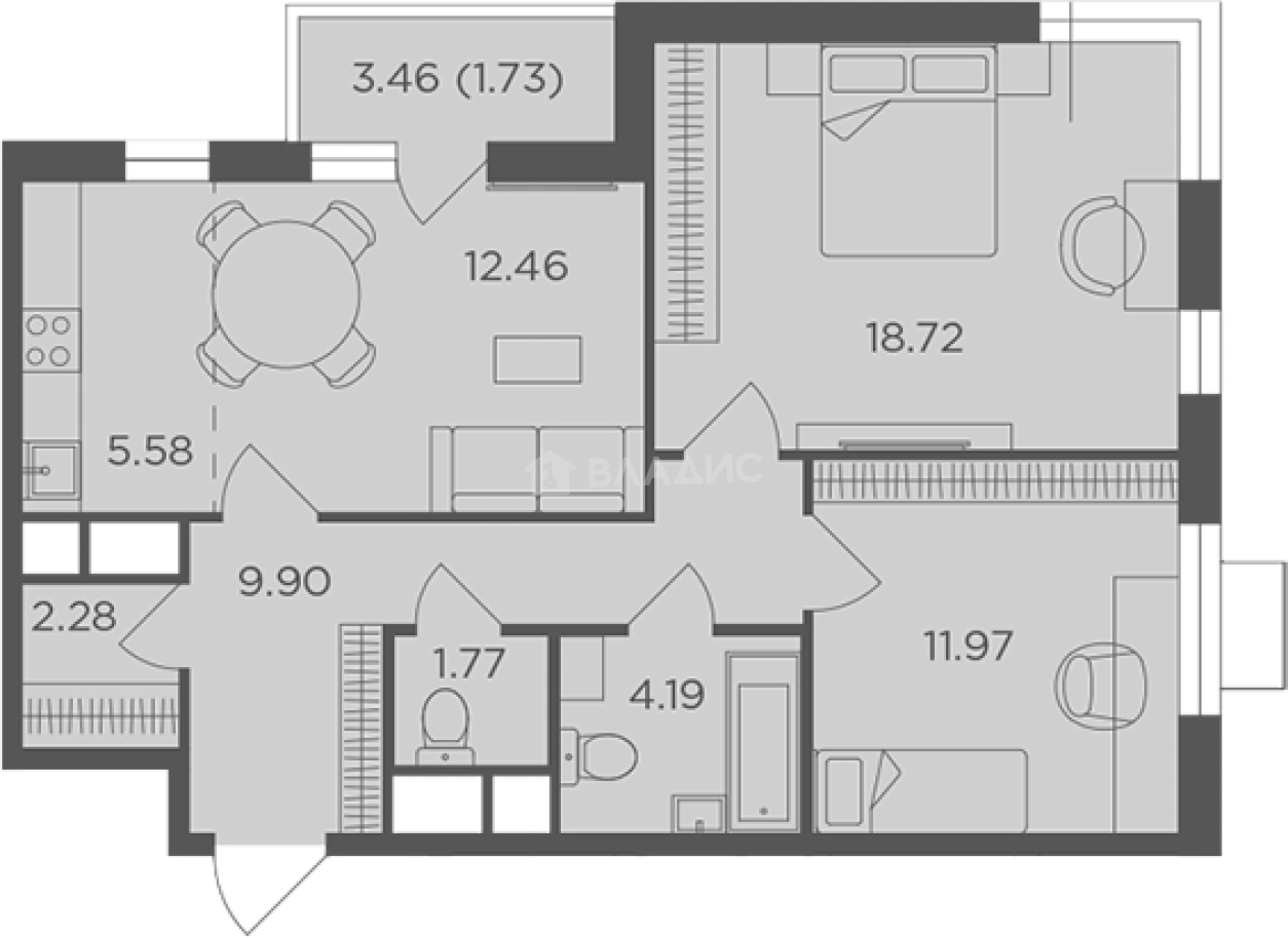
Общая площадь
68.9 м²
Жилая площадь
43.2 м²
Площадь кухни
5.6 м²
Площадь комнат
18.72+11.97 м²
Высота потолков
2.89 м
Подъезд
1
Этаж
9
Окна выходят
На улицу
О доме
Год постройки
2024
Этажность
24
Количество подъездов
1
Материал постройки
Кирпично-монолитный
Материал перекрытий
Монолитные
Отопление
Центральное
Пассажирских лифтов
1
Грузовых лифтов
1
Парковка
Наземная
Расположение
Россия, Московская область, Одинцово, микрорайон Клубничное Поле, 10
Пыхтино
11 мин.
Ипотечный калькулятор
Заполните 1 анкету — получите предложения от десятков банков на специальных условиях
Программа ипотеки
Стоимость жилья, ₽
Первый взнос, ₽
Срок кредита
от 5.75%
Ставка
от 94 241 ₽
Платеж в месяц
Расчёт носит информационный характер и не является публичной офертой
Похожие объекты

















3-комн. квартира, 60,4 м², 3/19 эт.
Пыхтино
6 мин.

















2-комн. квартира, 66,8 м², 5/19 эт.
Пыхтино
6 мин.

















2-комн. квартира, 64,8 м², 6/19 эт.
Пыхтино
6 мин.

















2-комн. квартира, 64,8 м², 19/19 эт.
Пыхтино
6 мин.
Консультант по новостройкам
14 980 000 ₽
217 417 ₽/м²












