Продается 2-комн. квартира, 66 м²
Россия, Московская область, Одинцово, Сколковская улица, 3А
66 м²
Общая площадь
43 м²
Жилая площадь
15 м²
Площадь кухни
25 из 27
Этаж
Описание
Квартира свежая, никто не жил и не прописан. ОДИН взрослый собственник. В собственности более 3 лет. Свободная продажа с указанием полной стоимости в договоре. Быстрый выход на СДЕЛКУ!
Выполнена по УНИКАЛЬНОМУ ДИЗАЙН-ПРОЕКТУ дизайнера Инны Макаровой.
В прошлом году она вошла в тройку финалистов и стала НОМИНАНТКОЙ конкурса-2024 Intеriоr dеsign аwаrds в категории НОВАТОР.
Двусветное пространство с витражным остеклением и шестиметровым потолком в зоне гостиной создаёт ощущение нахождения в своём собственном доме.
Зимой здесь есть, где разместить высокую рождественскую ёлку, напитав пространство запахом хвои и создать атмосферу светлого праздника.
За счёт продуманного микроклимата в квартире всегда свежо и комфортно, что обеспечивается запотолочной системой приточно-вытяжной вентиляции и кондиционирования.
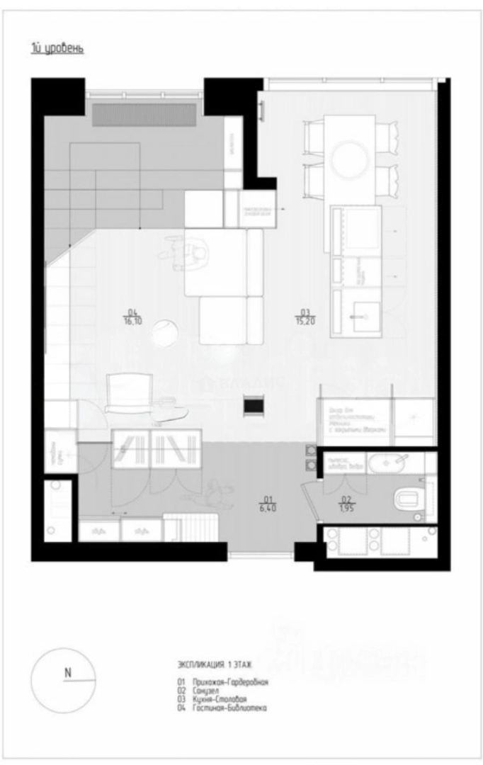
На первом этаже: входная зона со шкафами под верхнюю одежду и большое количество обуви; гостевой санузел с гигиеническим душем + шкаф под хозяйственные нужды; гостиная с зоной отдыха и библиотекой; кухонный остров со столовой группой и колоннами под мелкую бытовую технику. Столешница острова выполнена из кварца. Стол в обеденной зоне и тумба под ТV, переходящая в ступень, выполнены из акрилового камня.
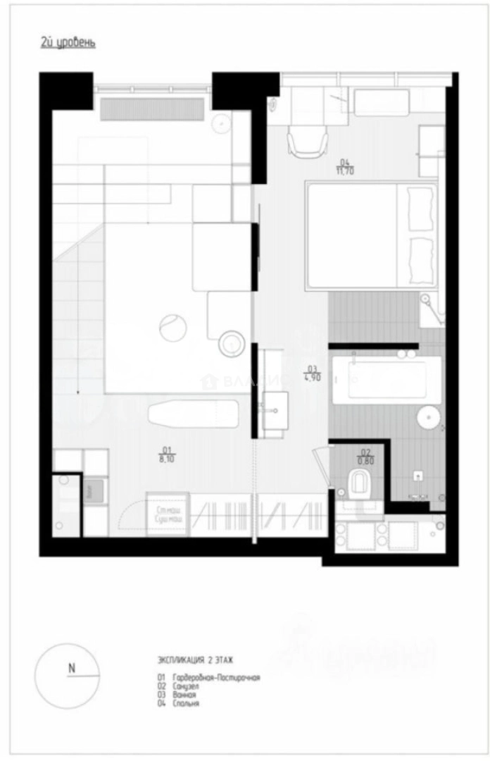
Второй этаж: гардеробная с постирочной зоной; отдельностоящая ванная, санузел, умывальная зона, изолированная душевая с тропическим душем; спальня с двуспальной кроватью 160х200; парящие стол с лавочкой индивидуального изготовления.
Все окна от застройщика заменены на двухкамерные стеклопакеты.
Множество зеркал, размещение основного и дополнительного освещения, цветовая гамма, панорамные окна - всё это позволяет ощутить объёмно-пространственную композицию жилого пространства сполна.
Дом относится к UР-кварталу СКОЛКОВСКИЙ с развитой инфраструктурой. Рядом ПОДУШКИНСКИЙ ЛЕС и МЕЩЕРСКИЙ ЛЕСОПАРК, метро Сколково.
ВЫЕЗД на новую ПЛАТНУЮ АВТОСТРАДУ - до МОСКВА-СIТY 15 мин.
О квартире
Общая площадь
66 м²
Жилая площадь
43 м²
Площадь кухни
15 м²
Высота потолков
5.8 м
Этаж
25
Расположение квартиры
не угловая
Окна выходят
На улицу
Раздельных санузлов
1
Совмещенных санузлов
1
Ремонт
Дизайнерский
О доме
Год постройки
2018
Этажность
27
Материал постройки
Монолитный
Материал перекрытий
Ж/б плиты
Отопление
Центральное
Пассажирских лифтов
3
Грузовых лифтов
1
Парковка
Многоуровневая
Расположение
Россия, Московская область, Одинцово, Сколковская улица, 3А
Ипотечный калькулятор
Заполните 1 анкету — получите предложения от десятков банков на специальных условиях
Программа ипотеки
Стоимость жилья, ₽
Первый взнос, ₽
Срок кредита
от 5.75%
Ставка
от 138 404 ₽
Платеж в месяц
Расчёт носит информационный характер и не является публичной офертой
Предложите свою цену
22 000 000 ₽
333 333 ₽/м²



















































































