Купить дом на улице Горная в Микрорайоне Прометей в Октябрьском
Россия, Республика Башкортостан, Октябрьский, Горная улица
80 м²
Площадь дома
7 сот
Площадь участка
Монолитный
Материал постройки
1
Этажей
Описание
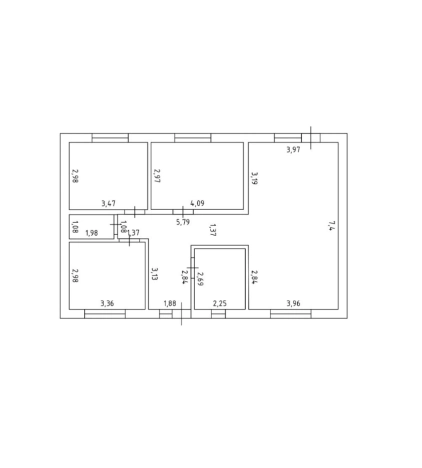
Этот одноэтажный дом с тремя комнатами (12+12+14 кв. м) и просторной кухней (29 кв. м) станет вашим уютным гнёздышком. Высота потолков 3,2 м создаёт ощущение простора, а монолитная конструкция и ж/б перекрытия гарантируют надёжность и долговечность. Дом подключён к центральному водоснабжению, имеет индивидуальный котёл для отопления, что обеспечивает комфорт в любое время года.
Участок площадью 7 соток предоставляет возможности для благоустройства по вашему вкусу. Состояние white box позволяет реализовать любые дизайнерские решения.
Не упустите шанс стать владельцем этого прекрасного дома. Звоните нам прямо сейчас, чтобы узнать больше и записаться на просмотр.
Мы гарантируем безопасную сделку и юридическую поддержку нашим Клиентам. Поможем одобрить ипотеку с сниженной ставкой.
О доме
Год постройки
2026
Этажей в доме
1
Общая площадь
80 м²
Жилая площадь
38 м²
Площадь кухни
29 м²
Площадь комнат
12+12+14 м²
Материал постройки
Монолитный
Материал перекрытий
Ж/б плиты
Материал кровли
Металлочерепица
Высота потолков
3.2 м
Об участке
Площадь участка
7 сот.
Статус участка
Индивидуальное жилищное строительство
Электричество
Есть
Газ
Есть
Водоснабжение
Есть
Канализация
Есть
Без благоустройства участка
Есть
Расположение
Россия, Республика Башкортостан, Октябрьский, Горная улица
Ипотечный калькулятор
Заполните 1 анкету — получите предложения от десятков банков на специальных условиях
Программа ипотеки
Стоимость жилья, ₽
Первый взнос, ₽
Срок кредита
от 5.75%
Ставка
от 42 151 ₽
Платеж в месяц
Расчёт носит информационный характер и не является публичной офертой
Предложите свою цену
6 700 000 ₽
83 750 ₽/м²









