Продается Здание, 527.1 м²
Россия, Омск, 16-я Северная улица, 114
527.1 м²
Общая площадь
Отдельный
Вход в помещение
Свободный
Доступ в помещение
1 из 3
Этаж
Описание
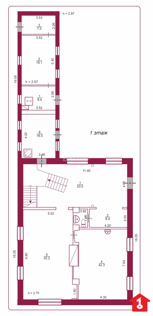
Трёхэтажное кирпичное здание площадью 527,1 кв.м, восемь комнат, три санузла, центральные водопровод, канализация и электроэнергия. Отопление - газовый котел и резервный котел.
Одноэтажное деревянное здание банного комплекса, площадью 34,8 кв.м примыкает к основному зданию.
Гараж на шесть автомобилей, хозяйственные постройки.
Проведен интернет, подключена пожарная сигнализация.
Здание имеет статус нежилого помещения, в настоящий момент в нем функционирует Омский Региональный Институт.
При желании, возможен перевод в жилой дом.
Хорошая транспортная доступность. Возможно использовать данный объект под офисное, учебное, или медицинское учреждение и т.д.
Звоните!
Об объекте
Общая площадь
527.1 м²
Этаж
1
Высота потолков
3 м
Электрическая мощность
20 кВт
Совмещенных санузлов
3
Ремонт
Евро
Вход в помещение
Отдельный
Доступ в помещение
Свободный
Удобства
Интернет
Кондиционер
Вентиляция
Кухня
Мебель
Пожарная сигнализация
О здании
Тип коммерции
Отдельное здание
Год постройки
2010
Материал постройки
Кирпичный
Отопление
Своя котельная
Этажей в доме
3
Парковка
Наземная
Расположение
Россия, Омск, 16-я Северная улица, 114
Ипотечный калькулятор
Заполните 1 анкету — получите предложения от десятков банков на специальных условиях
Программа ипотеки
Стоимость жилья, ₽
Первый взнос, ₽
Срок кредита
от 5.75%
Ставка
от 163 568 ₽
Платеж в месяц
Расчёт носит информационный характер и не является публичной офертой
Предложите свою цену
26 000 000 ₽
49 327 ₽/м²





































