Купить дом на улице Широкая в Омске
Россия, Омск, Широкая улица
1012.2 м²
Площадь дома
21.75 сот
Площадь участка
Кирпичный
Материал постройки
2
Этажей
Описание
Коттедж построен в 2012 году. Расположен на участке ИЖС площадью 21,75 соток и имеет все сетевые коммуникации: электричество, водоснабжение, газ и канализацию. Подъезд к коттеджу — асфальтированный.
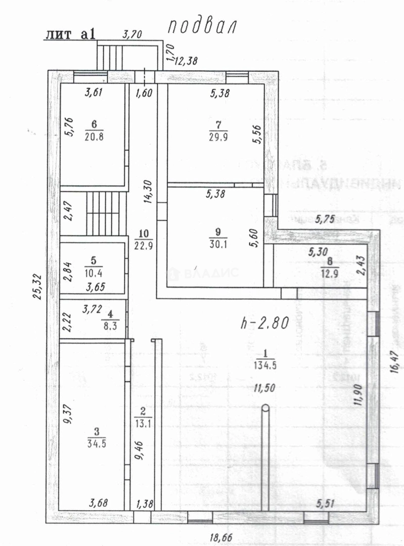
Дом 2-этажный с цокольным этажом, построен полностью из кирпича с утеплителем, перекрытия железобетонные, крыша покрыта мягкой черепицей, фундамент ленточный, бетонные блоки. Высота потолков — 3,2 метра. В доме установлен индивидуальный котёл отопления. Общая площадь — 1012,2 кв.м, жилая — 428,6 кв.м. Площадь кухни — 30,5 кв.м. Дом расположен так, что все окна на солнечную сторону от восхода до заката. На участке есть гараж, хозблок, зона барбекю, теплица. Участок огорожен кирпичным забором.
В доме можно проживать круглогодично. Состояние — чистовая отделка. В доме больше 10 комнат разной величины. В некоторых из них размещены приватные санузлы и сделан ремонт.
Не упустите возможность стать владельцем прекрасного дома в одном из лучших районов Омска! Мы гарантируем безопасную сделку и юридическую поддержку нашим Клиентам. Торг уместен.
Свяжитесь с нами для получения дополнительной информации и организации просмотра.
О доме
Год постройки
2012
Этажей в доме
2
Общая площадь
1012.2 м²
Жилая площадь
428.6 м²
Площадь кухни
30.5 м²
Площадь комнат
428.6 м²
Материал постройки
Кирпичный
Материал перекрытий
Ж/б плиты
Материал кровли
Мягкая черепица
Высота потолков
3.2 м
Об участке
Площадь участка
21.75 сот.
Статус участка
Индивидуальное жилищное строительство
Электричество
Есть
Газ
Есть
Водоснабжение
Есть
Канализация
Есть
Гараж
Есть
Подъезд к участку
Асфальт
Расположение
Россия, Омск, Широкая улица
Ипотечный калькулятор
Заполните 1 анкету — получите предложения от десятков банков на специальных условиях
Программа ипотеки
Стоимость жилья, ₽
Первый взнос, ₽
Срок кредита
от 5.75%
Ставка
от 251 643 ₽
Платеж в месяц
Расчёт носит информационный характер и не является публичной офертой
Предложите свою цену
40 000 000 ₽
39 518 ₽/м²





























