Купить дом на улице 16-я Северная в Омске
Россия, Омск, 16-я Северная улица, 114
492.3 м²
Площадь дома
10 сот
Площадь участка
Кирпичный
Материал постройки
3
Этажей
Описание
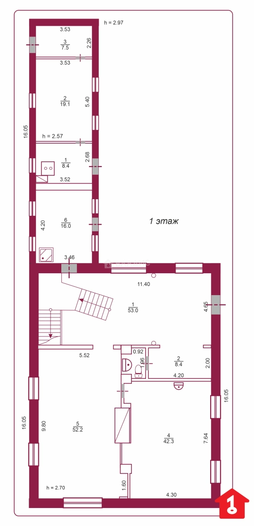
Дом построен в 2010 году из качественного кирпича, что гарантирует его долговечность и надёжность. Общая площадь составляет 492,3 кв. м, из которых 264,9 кв. м — жилая площадь. Высота потолков в 3 метра добавляет пространству воздуха и свободы. В доме 8 комнат, включая просторную кухню площадью 42,3 кв. м.
На участке также есть гараж на шесть автомобилей, хозяйственные постройки и баня. Участок благоустроен, а подъезд к нему асфальтирован. Все необходимые коммуникации (электричество, водоснабжение, газ, канализация) подключены.
Дом с евроремонтом продаётся со встроенной мебелью, что позволит новым владельцам сразу въехать и начать жить без дополнительных вложений.
Также этот объект возможно использовать в коммерческих целях, в настоящий момент в нем функционирует Омский Региональный Институт.
Не упустите возможность стать владельцем этого прекрасного дома! Позвоните нам прямо сейчас, чтобы узнать больше и договориться о просмотре.
Компания МИАРД Владис гарантирует безопасную сделку и юридическую поддержку нашим клиентам. Звоните!
О доме
Год постройки
2010
Этажей в доме
3
Общая площадь
492.3 м²
Жилая площадь
264.9 м²
Площадь кухни
42.3 м²
Площадь комнат
52,2+34,1+39,9+20+ 27+19,5+32,9+39,3 м²
Материал постройки
Кирпичный
Материал перекрытий
Ж/б плиты
Материал кровли
Металлочерепица
Высота потолков
3 м
Об участке
Площадь участка
10 сот.
Статус участка
Индивидуальное жилищное строительство
Электричество
Есть
Газ
Есть
Водоснабжение
Есть
Канализация
Есть
Гараж
Есть
Подъезд к участку
Асфальт
Расположение
Россия, Омск, 16-я Северная улица, 114
Ипотечный калькулятор
Заполните 1 анкету — получите предложения от десятков банков на специальных условиях
Программа ипотеки
Стоимость жилья, ₽
Первый взнос, ₽
Срок кредита
от 5.75%
Ставка
от 163 568 ₽
Платеж в месяц
Расчёт носит информационный характер и не является публичной офертой
Предложите свою цену
26 000 000 ₽
52 813 ₽/м²






































