Купить дом на улице 15-я Рабочая в Омске
Россия, Омск, 15-я Рабочая улица
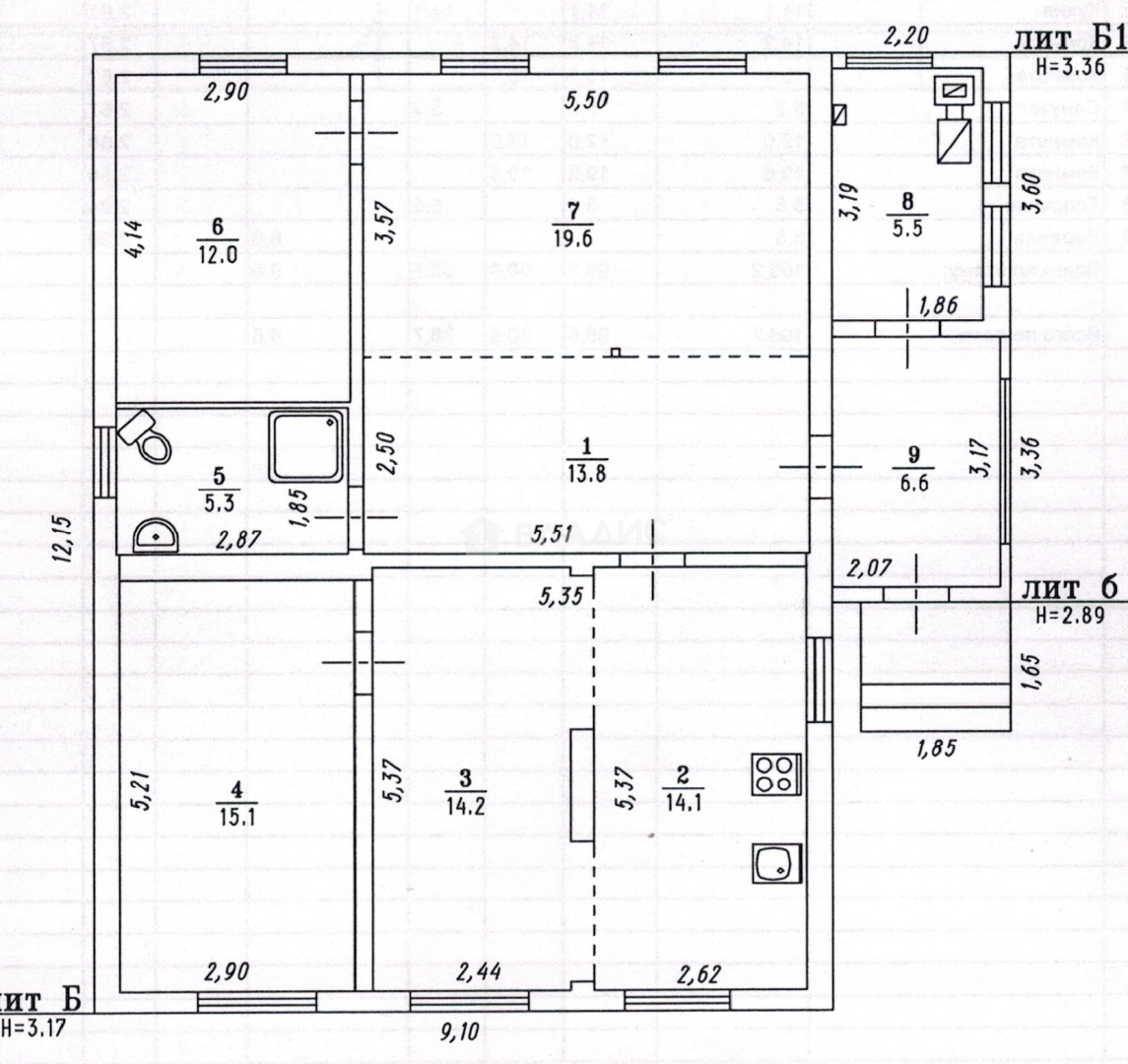
107.2 м²
Площадь дома
5.2 сот
Площадь участка
Деревянный
Материал постройки
2
Этажей
Описание
О доме
Год постройки
2007
Этажей в доме
2
Общая площадь
107.2 м²
Жилая площадь
55 м²
Площадь кухни
29.5 м²
Площадь комнат
55 м²
Материал постройки
Деревянный
Материал перекрытий
Деревянные
Материал кровли
Металлочерепица
Совмещенных санузлов
1
Об участке
Площадь участка
5.2 сот.
Статус участка
Индивидуальное жилищное строительство
Электричество
Есть
Газ
Есть
Водоснабжение
Есть
Канализация
Есть
Гараж
Есть
Подъезд к участку
Асфальт
Расположение
Россия, Омск, 15-я Рабочая улица
Ипотечный калькулятор
Заполните 1 анкету — получите предложения от десятков банков на специальных условиях
Программа ипотеки
Стоимость жилья, ₽
Первый взнос, ₽
Срок кредита
от 5.75%
Ставка
от 58 885 ₽
Платеж в месяц
Расчёт носит информационный характер и не является публичной офертой
Предложите свою цену
9 360 000 ₽
87 313 ₽/м²















































