Купить дом на улице 2-я аллея в Омске
Россия, Омск, территория СОСН Иртыш-1, 2-я аллея, 30
164.3 м²
Площадь дома
7 сот
Площадь участка
Кирпичный
Материал постройки
2
Этажей
Описание
Жилой дом в СНТ "Иртыш-1" - это ваш шанс комфортной загородной жизни. Расположение СНТ уже оценили десятки счастливых домовладельцев - отличная дорога, 20 минут от центра города, тихое место на достаточном расстоянии от дороги, всего 100 домов в СНТ. Поблизости р. Иртыш. Остановка общественного транспорта и магазин в пяти минутах ходьбы от дома. Въезд на территорию СНТ через шлагбаум.
Построен из кирпича, фундамент ленточный. Крыша - металлическая черепица. По периметру всего дома - теплый пол (водяной). Ремонт выполнен с использованием современных качественных материалов.
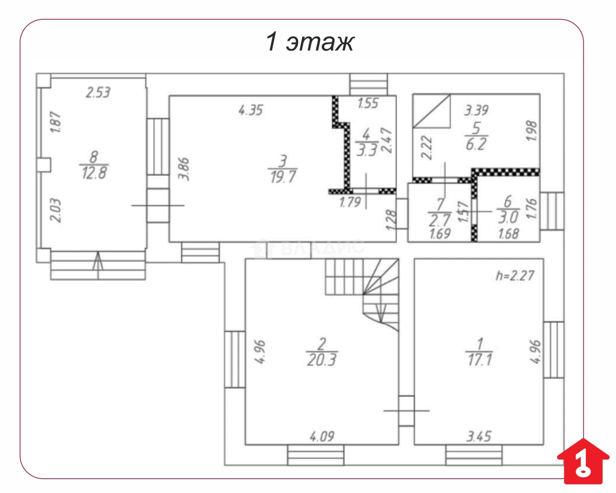
Функциональная планировка: первый этаж – входная группа, просторная кухня, гостиная, спальня, санузел, техническая комната; второй этаж – спальня, большая гардеробная, спальня с закрытой террасой, санузел.
Коммуникации – газ (газовое отопление, 2-х контурный котел ITALTHERM), резервный электрический котел ТепорТех, вода централизованная (городская) и на участке проведена вода для полива (СНТ). Септик с переливом 5 колец. Заведен интернет (оптоволокно). Видеонаблюдение по периметру всего участка. Установлены кондиционеры. Водонагреватель электрический дополнительно.
Территория вокруг дома облагорожена: ландшафтный дизайн участка, освещение, высажено множество хвойный и других растений, газон. Построены беседка и летняя веранда.
Бонус для покупателя - все наполнение дома, в том числе и бытовая техника остается новым собственникам!
Документы прошли юридическую экспертизу! Готовы ответить на все интересующие вас вопросы и оперативно показать! Звоните!
О доме
Год постройки
2017
Этажей в доме
2
Общая площадь
164.3 м²
Жилая площадь
62.2 м²
Площадь кухни
19.7 м²
Площадь комнат
20,3+17,1+14,3+10,5 м²
Материал постройки
Кирпичный
Материал перекрытий
Деревянные
Материал кровли
Металлочерепица
Высота потолков
3 м
Об участке
Площадь участка
7 сот.
Статус участка
Садоводство
Электричество
Есть
Газ
Есть
Водоснабжение
Есть
Канализация
Есть
Без благоустройства участка
Есть
Подъезд к участку
Грунтовка
Расположение
Россия, Омск, территория СОСН Иртыш-1, 2-я аллея, 30
Ипотечный калькулятор
Заполните 1 анкету — получите предложения от десятков банков на специальных условиях
Программа ипотеки
Стоимость жилья, ₽
Первый взнос, ₽
Срок кредита
от 5.75%
Ставка
от 149 036 ₽
Платеж в месяц
Расчёт носит информационный характер и не является публичной офертой
Предложите свою цену
23 690 000 ₽
144 187 ₽/м²


































