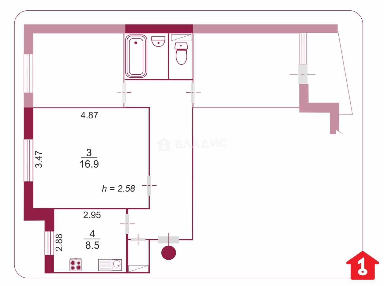
Продается комната, 16.9 м²
Россия, Омск, улица Дианова, 7
16.9 м²
Площадь комнаты
8.5 м²
Площадь кухни
3
Комнат в квартире
1 из 9
Этаж
Описание
Комната находится на первом этаже девятиэтажного панельного дома, построенного в 1977 году. Общая площадь — 16,9 кв. м, высота потолков — 2,6 м. В квартире косметический ремонт, поэтому можно сразу заезжать и жить. Окна выходят во двор.
Расположение очень удобное: развитая инфраструктура, близость к общественному транспорту и социальным объектам делают это предложение привлекательным для молодых специалистов и студентов.
Компания МИАРД Владис гарантирует безопасную сделку и юридическую поддержку своим клиентам. Поможем одобрить ипотеку со сниженной ставкой.
О комнате
Площадь комнаты
16.9 м²
Площадь кухни
8.5 м²
Площадь комнат
16.9 м²
Комнат в блоке
3
Высота потолков
2.6 м
Тип комнаты
Доля в квартире
Комнат в квартире
3
Этаж
1
Расположение квартиры
не угловая
Окна выходят
На улицу
О доме
Год постройки
1977
Этажность
9
Количество подъездов
6
Материал постройки
Панельный
Материал перекрытий
Ж/б плиты
Отопление
Центральное
Пассажирских лифтов
1
Расположение
Россия, Омск, улица Дианова, 7
Ипотечный калькулятор
Заполните 1 анкету — получите предложения от десятков банков на специальных условиях
Программа ипотеки
Стоимость жилья, ₽
Первый взнос, ₽
Срок кредита
от 5.75%
Ставка
от 11 954 ₽
Платеж в месяц
Расчёт носит информационный характер и не является публичной офертой
Предложите свою цену
1 900 000 ₽
112 426 ₽/м²















