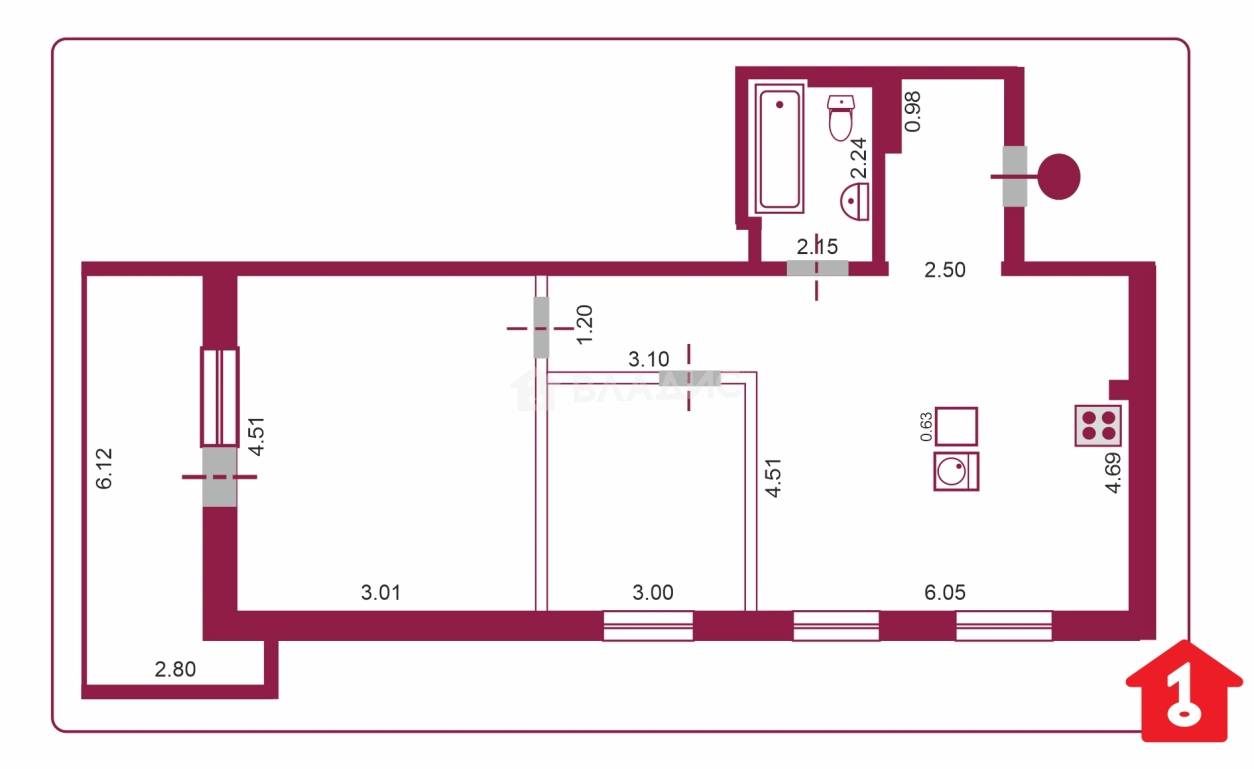
Продается 2-комн. квартира, 65.4 м²
Россия, Омск, улица Масленникова, 39
65.4 м²
Общая площадь
30 м²
Жилая площадь
20 м²
Площадь кухни
4 из 4
Этаж
Описание
Прекрасное местоположение дома. В пешей доступности ТЦ ПАРК, множество торговых точек продуктовых и промышленных, медицинские центры, Детская больница, поликлиника, школа, детский сад, остановка общественного транспорта, Парк им. 30-летия ВЛСМ с аттракционами и прогулочными зонами.
Дом 2020 года постройки, малой этажности. Минимальное количество соседей. Чистый ухоженный подъезд, всего 9 квартир, свое ТСЖ. Припарковать машину можно в любое время, также в доме есть теплый подземный паркинг.
Большая кухня-гостиная и две изолированные спальни. Солнечного света достаточно, ориентир окон Восток-Запад. Горизонтальная разводка отопления - теплый пол. Ремонт в светлых монохромных тонах.
Квартира укомплектована всем необходимым. У входа вместительный шкаф-купе. Кухонный гарнитур с встроенной техникой (варочная поверхность, духовой шкаф, вытяжка, холодильник, посудомойка). Кондиционер. Будущая хозяйка оценит кухонный островок для приготовления пищи. В зоне отдыха большой диван. Спальни также со всей необходимой мебелью: кровати, шкафы, столы. Вам останется только расставить яркие акценты интерьера по своему вкусу.
Уникальность квартиры - это большой балкон в 2 этажа.
На втором этаже панорамные окна. Прекрасная зона отдыха с диваном, мини-столом и кондиционером.
Квартира свободна от проживающих! Чистая продажа без подбора альтернативы! Один взрослый собственник, без долгов и обременений!
Звоните, согласуем просмотр в удобное для вас время!
О квартире
Общая площадь
65.4 м²
Жилая площадь
30 м²
Площадь кухни
20 м²
Площадь комнат
15+15 м²
Высота потолков
2.8 м
Подъезд
1
Этаж
4
Расположение квартиры
угловая
Окна выходят
На улицу
Совмещенных санузлов
1
О доме
Год постройки
2020
Этажность
4
Количество подъездов
2
Материал постройки
Кирпично-монолитный
Материал перекрытий
Ж/б плиты
Отопление
Центральное
Парковка
Наземная
Расположение
Россия, Омск, улица Масленникова, 39
Ипотечный калькулятор
Заполните 1 анкету — получите предложения от десятков банков на специальных условиях
Программа ипотеки
Стоимость жилья, ₽
Первый взнос, ₽
Срок кредита
от 5.75%
Ставка
от 66 057 ₽
Платеж в месяц
Расчёт носит информационный характер и не является публичной офертой
Предложите свою цену
10 500 000 ₽
160 550 ₽/м²














































