Сдается Торговое Помещение, 380 м²
Россия, Омск, проспект Мира, 28
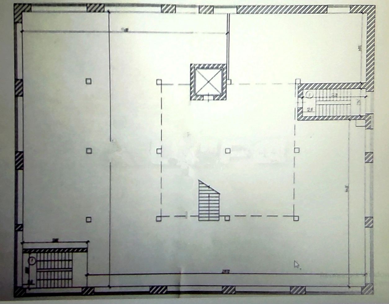
380 м²
Общая площадь
Общий
Вход в помещение
Свободный
Доступ в помещение
2 из 3
Этаж
Описание
Коммерческий отдел агентства недвижимости МИАРД Владис предлагает вашему вниманию просторное и светлое торговое помещение свободного назначения, площадью 380 кв.м на проспекте Мира, на 2-ом этаже (в т.ч площадь антресольного этажа - 80 кв.м) отдельно стоящего торгово-офисного центра. Можно выбрать любую площадь!
Планировка свободная, по согласованию с собственником возможна перепланировка.
Почему это идеальный выбор?
Расположение.
Проспект Мира — одна из главных транспортных артерий Омска, что обеспечивает высокий трафик потенциальных клиентов.
Доступность.
Общий вход и свободный доступ в помещение делают его удобным для посетителей.
Комфорт.
Кондиционирование, пожарная сигнализация, центральное отопление - для обеспечения комфортных и безопасных условий работы.
Простор.
Здание кирпичное. Высота потолков 4 метра позволяет организовать пространство по своему вкусу.
Помещение.
Косметический ремонт позволит сразу же приступить к работе без дополнительных вложений.
Возможно использование под торговлю, офис, оказание услуг населению (медицинских, образовательных, спортивных, бытовых и прочих).
Не упустите возможность арендовать коммерческую недвижимость по выгодной цене! Свяжитесь с нами сегодня, чтобы узнать подробности и договориться о просмотре помещения. Мы гарантируем безопасную сделку и юридическую поддержку нашим клиентам.
ЗВОНИТЕ!
Об объекте
Общая площадь
380 м²
Этаж
2
Высота потолков
4 м
Электрическая мощность
50 кВт
Ремонт
Косметический
Вход в помещение
Общий
Доступ в помещение
Свободный
Удобства
Кондиционер
Пожарная сигнализация
Условия аренды
Коммунальные платежи
Включены
Минимальный срок аренды
Не указан
Счётчики
Отдельно
О здании
Тип коммерции
Торговый центр
Год постройки
1970
Материал постройки
Кирпичный
Отопление
Центральное
Этажей в доме
3
Парковка
Наземная
Расположение
Россия, Омск, проспект Мира, 28
6 600 ₽/м² в год
Комиссия
50%
Залог
360 000 ₽
Налог
УСН
209 000 ₽/мес.












