Купить дом на улице Ленина в Омской области
Россия, Омский район, село Новотроицкое, улица Ленина
327 м²
Площадь дома
15 сот
Площадь участка
Газобетонный блок
Материал постройки
3
Этажей
Описание
Предлагаем вашему вниманию великолепный загородный дом, расположенный в селе Новотройцкое Омского района. Это идеальное место для тех, кто ценит тишину, спокойствие и просторы природы.
🏡 Общая Площадь и Планировка
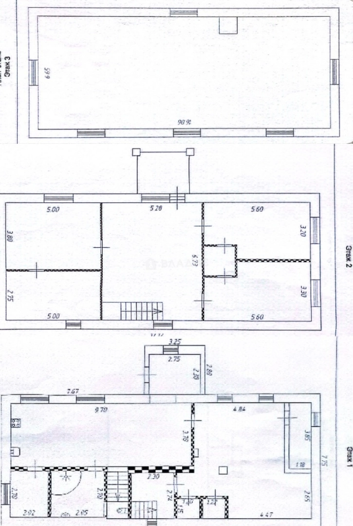
Дом общей площадью 327 кв.м предлагает уникальную планировку, которая идеально подходит для комфортного проживания.
- Первый этаж включает в себя:
- Кухню-гостиную, где будет приятно собираться с семьей и друзьями.
- Большой совмещенный санузел с современными удобствами.
- Котельную для поддержания уютного климата в доме.
- Лестницу с встроенной сенсорной подсветкой, обеспечивающую безопасность и стиль.
- Банный комплекс, где предусмотрены:
- Душевая зона
- Подготовленная площадь для небольшого бассейна
- Уютная зона отдыха
- Выход в подвальное помещение высотой 1,8 метра, что добавляет функциональности дому.
На первом этаже также заведены газ, установлен газовый и электрический котел, бойлер
🛏️ Спальни и Второй Этаж
На втором этаже находятся:
- Коридор
- Три спальни, которые обеспечат комфортный отдых каждому члену семьи.
- Два санузла, что особенно удобно для больших семей.
Третий этаж — пустой, что дает вам возможность реализации собственных дизайнерских идей.
🌿 Земельный Участок
Земельный участок площадью 15 соток — это ваше личное пространство для отдыха и увлечений.
- На большей части участка уложен газон, установленная зона отдыха и барбекю.
- Декоративные и плодовые деревья создают атмосферу уюта и гармонии.
- Полное освещение на всем участке добавляет безопасности и уюта в вечернее время.
- Небольшой водоем с фонтаном способствует расслаблению и наслаждению природой.
- Установлена теплица на прочном основании (размер 5,5х3,5), что позволит вырастить собственные овощи и зелень.
- Капитальный погреб из кирпича — идеальное место для хранения урожая.
На участке расположен дом площадью 47,5 кв.м, который можно оборудовать под баню. Этот дом также снабжен газом, водой и электричеством, что добавляет удобства.
🚗 Удобства и Доступность
Дорога до земельного участка асфальтированная и удобная. Установлены автоматические ворота, что добавляет комфорт и безопасность.
Не упустите возможность стать владельцем этого замечательного загородного дома, который идеально подходит для семейного времяпрепровождения и отдыха на природе!
✨ Позвоните нам прямо сейчас, чтобы узнать больше и записаться на просмотр!
О доме
Год постройки
2020
Этажей в доме
3
Общая площадь
327 м²
Жилая площадь
150 м²
Площадь кухни
30 м²
Площадь комнат
18+16+15+20+ 17+30+34 м²
Материал постройки
Газобетонный блок
Материал перекрытий
Ж/б плиты
Материал кровли
Профнастил
Высота потолков
2.8 м
Об участке
Площадь участка
15 сот.
Статус участка
Индивидуальное жилищное строительство
Электричество
Есть
Газ
Есть
Водоснабжение
Есть
Канализация
Есть
Бассейн
Есть
Подъезд к участку
Асфальт
Расположение
Россия, Омский район, село Новотроицкое, улица Ленина
Ипотечный калькулятор
Заполните 1 анкету — получите предложения от десятков банков на специальных условиях
Программа ипотеки
Стоимость жилья, ₽
Первый взнос, ₽
Срок кредита
от 5.75%
Ставка
от 84 930 ₽
Платеж в месяц
Расчёт носит информационный характер и не является публичной офертой
Предложите свою цену
13 500 000 ₽
41 284 ₽/м²






































