Продается 3-комн. квартира, 65.2 м²
Россия, Омский район, село Андреевка, Школьная улица, 7
65.2 м²
Общая площадь
48.7 м²
Жилая площадь
6.4 м²
Площадь кухни
2 из 2
Этаж
Описание
О квартире:
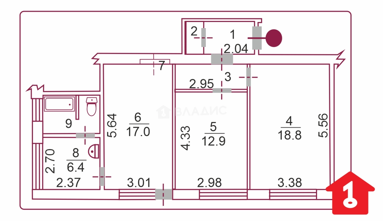
Трехкомнатная, общая площадь 65,2 кв.м, расположена на 2 этаже. Гостиная 17 кв.м, позволяет собраться за общим столом всей семьей и гостями в будние и праздничные дни. Индивидуальный выход на лестницу с прекрасным видом на природу поселка, позволит насладиться за чашкой кофе или чая пением птиц и мягким ветерком в летний период.
Кухня 6,4 кв.м, отличное место для приготовления ваших кулинарных шедевров.
Комната 12,9 кв.м, можно оборудовать здесь детскую с зонированным пространством для учебы и игр.
Комната 18,6 кв.м со встроенным шкафом-купе - станет вашим уютным гнездышко.
Отдельная прихожая также оборудована встроенным шкафом-купе для верхней одежды и обуви.
Металлическая входная дверь, тамбур на 2 квартиры.
О доме и инфраструктуре:
Дом расположен в Омском районе, с. Андреевка, в окружении прекрасных видов и природы. В шаговой доступности продуктовые магазины, школа, ФАП, детский сад прямо за домом. Для любителей огорода - за квартирой закреплен земельный участок. В 20 минутах прогулочным шагом расположена р. Омка. Запланировано подведение газа.
Если у вас остались вопросы, а также для записи на просмотр - обращайтесь по телефону!
Ежедневно между городом и поселком курсирует автобус (по расписанию), время в пути не более 30 минут!
Один взрослый собственник!
Материнский капитал не использовался!
Долгов и обременения нет!
С нами выгодно продают и покупают объекты недвижимости. Помогаем в одобрении ипотеки на привлекательных условиях от наших банков-партнеров!
О квартире
Общая площадь
65.2 м²
Жилая площадь
48.7 м²
Площадь кухни
6.4 м²
Площадь комнат
48,7 м²
Высота потолков
3 м
Подъезд
1
Этаж
2
Расположение квартиры
не угловая
Окна выходят
На улицу, Во двор
Совмещенных санузлов
1
О доме
Год постройки
1973
Этажность
2
Материал постройки
Панельный
Материал перекрытий
Ж/б плиты
Отопление
Центральное
Расположение
Россия, Омский район, село Андреевка, Школьная улица, 7
Ипотечный калькулятор
Заполните 1 анкету — получите предложения от десятков банков на специальных условиях
Программа ипотеки
Стоимость жилья, ₽
Первый взнос, ₽
Срок кредита
от 5.75%
Ставка
от 15 099 ₽
Платеж в месяц
Расчёт носит информационный характер и не является публичной офертой
Предложите свою цену
2 400 000 ₽
36 810 ₽/м²































