Продается 3-комн. квартира, 58.7 м²
Россия, Московская область, городской округ Коломна, Озёры, площадь Карла Маркса, 53
58.7 м²
Общая площадь
40.4 м²
Жилая площадь
9.2 м²
Площадь кухни
2 из 2
Этаж
Описание
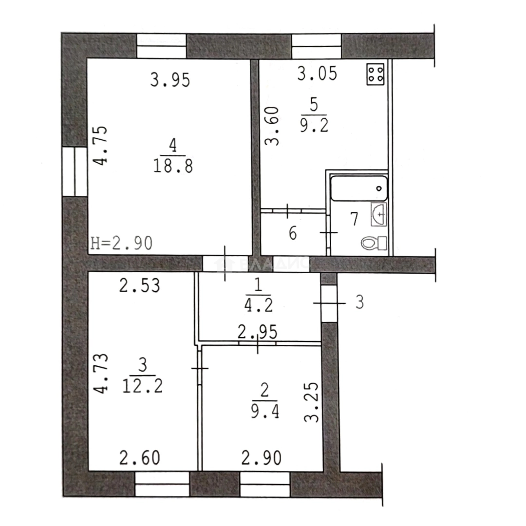
-общая площадь 58.7 кв.м.
- удачная планировка (окна на три стороны дома)
- комнаты площадью 9.4+12.2+18.8
- кухня 9,2 кв.м
- свой котёл ( в любое время года есть отопление и горячая вода)
- в квартире можете сделать ремонт по своему вкусу.
Преимущества:
В шаговой доступности:
Школа
Сетевой магазин
Остановка ж/д транспорта
Рядом с домом всегда найдете парковочное место для своего авто
К покупке квартиры в подарок получите два гаража и два земельных участка рядом с домом.
Условия сделки:
Один взрослый собственник, быстрый выход на сделку.
Подходит под покупку в ипотеку
Поможем одобрить ипотеку ( даже онлайн)
Остались вопросы? Звоните, с радостью отвечу на всё вопросы и организую оперативный показ.
О квартире
Общая площадь
58.7 м²
Жилая площадь
40.4 м²
Площадь кухни
9.2 м²
Площадь комнат
9,4+12,2+18,8 м²
Высота потолков
3 м
Подъезд
1
Этаж
2
Расположение квартиры
угловая
Окна выходят
На улицу, Во двор
Совмещенных санузлов
1
О доме
Год постройки
1958
Этажность
2
Количество подъездов
1
Материал постройки
Кирпичный
Материал перекрытий
Деревянные
Отопление
Индивидуальный котел
Парковка
Наземная
Расположение
Россия, Московская область, городской округ Коломна, Озёры, площадь Карла Маркса, 53
Ипотечный калькулятор
Заполните 1 анкету — получите предложения от десятков банков на специальных условиях
Программа ипотеки
Стоимость жилья, ₽
Первый взнос, ₽
Срок кредита
от 5.75%
Ставка
от 16 357 ₽
Платеж в месяц
Расчёт носит информационный характер и не является публичной офертой
Гудина Ольга
Специалист по недвижимости
Предложите свою цену
2 600 000 ₽
44 293 ₽/м²





