Купить дом на улице 5-й Черниговский проезд в районе Первомайский в Микрорайоне Кривозерье в Пензе
Россия, Пенза, 5-й Черниговский проезд
101 м²
Площадь дома
6 сот
Площадь участка
Блочный
Материал постройки
1
Этажей
Описание
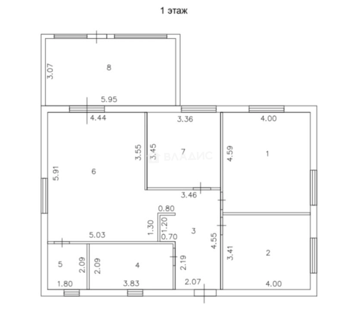
-Общая площадь дома: 101 кв.м.
- Земельный участок 6 соток. (кадастровый номер 58:29:3010003:1085)
- 3 просторные комнаты (13+12,5+12 кв.м.)
- Большая кухня-гостиная ( 22,5 кв.м.)
- Веранда 18 кв.м.
- Дом из блоков, облицован кирпичом.
- Крыша утеплена/покрытие металлочерепица;
Фундамент буро-набивной связанный ростверком.
Перекрытие ребристая плита.
Материал постройки пеноблок Д-500.
размеры пеноблока – 200х300х600.
Все коммуникации в доме (газ, свет, вода, сливная яма).
Прекрасное тихое место в шаговой доступности от города.
Остановка общественного транспорта в нескольких минутах не спешной ходьбы, асфальтированная дорога до самого участка.
В 5 минутах езды школа, детский сад, торговые центры. 10 мин до центра города.
За дополнительную плату возможно сделать предчистовую отделку, окончательная стоимость 6 500 000 руб.
Цена включает в себя отделку white box (стяжка и штукатурка по маякам), теплый пол по всему этажу, котел двухконтурный на отопление и воду, радиаторы развешаны под каждым окном.
ОГРОМНЫЙ НЕСОМНЕННЫЙ ПЛЮС ПОДХОДИТ ПОД ЛЮБУЮ ДЕЙСТВУЮЩУЮ ИПОТЕКУ!
Просто звоните и приходите на показ!!! И уже скоро вы станете владельцем дома своей мечты!!!
Участникам СВО персональная скидка от застройщика!!!!
О доме
Год постройки
2026
Этажей в доме
1
Общая площадь
101 м²
Жилая площадь
37.5 м²
Площадь кухни
22.5 м²
Площадь комнат
13+12+12,5 м²
Материал постройки
Блочный
Материал перекрытий
Ж/б плиты
Материал кровли
Металлочерепица
Высота потолков
3 м
Об участке
Площадь участка
6 сот.
Статус участка
Индивидуальное жилищное строительство
Электричество
Есть
Газ
Есть
Водоснабжение
Есть
Канализация
Есть
Без благоустройства участка
Есть
Подъезд к участку
Асфальт
Расположение
Россия, Пенза, 5-й Черниговский проезд
Ипотечный калькулятор
Заполните 1 анкету — получите предложения от десятков банков на специальных условиях
Программа ипотеки
Стоимость жилья, ₽
Первый взнос, ₽
Срок кредита
от 5.75%
Ставка
от 34 601 ₽
Платеж в месяц
Расчёт носит информационный характер и не является публичной офертой
Игошина Екатерина
Старший эксперт по недвижимости
Предложите свою цену
5 500 000 ₽
54 455 ₽/м²





























































