Продается 3-комн. квартира, 77.15 м²
Россия, Пенза, Октябрьский район, микрорайон Арбеково, микрорайон Дальнее Арбеково, жилой комплекс Рассвет
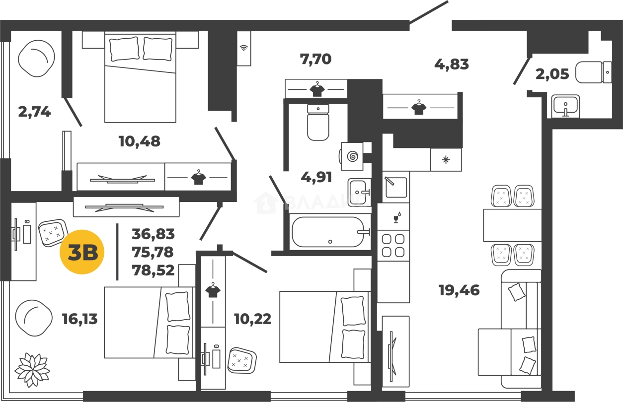
77.15 м²
Общая площадь
19 из 22
Этаж
Описание
Дом построен по современной технологии монолита и пеноблока, что гарантирует его прочность и долговечность. На первых трех этажах дома используется клинкерный кирпич - красивый и долговечный материал. Выше третьего этажа применяется технология мокрого фасада, которая обеспечивает дополнительную теплоизоляцию и эстетичный внешний вид здания.
Все квартиры в ЖК “Рассвет” имеют лучевой разводку отопления, что обеспечивает равномерное распределение тепла и комфорт жильцов в холодное время года. Кроме того, стены в квартирах оштукатурены, что позволяет жильцам сразу приступить к финишной отделке и оформлению интерьера по своему вкусу.
О квартире
Общая площадь
77.15 м²
Подъезд
1
Этаж
19
Окна выходят
На улицу
О доме
Год постройки
2026
Этажность
22
Количество подъездов
1
Материал постройки
Кирпично-монолитный
Материал перекрытий
Монолитные
Отопление
Центральное
Пассажирских лифтов
1
Грузовых лифтов
1
Парковка
Подземная
Расположение
Россия, Пенза, Октябрьский район, микрорайон Арбеково, микрорайон Дальнее Арбеково, жилой комплекс Рассвет
Ипотечный калькулятор
Заполните 1 анкету — получите предложения от десятков банков на специальных условиях
Программа ипотеки
Стоимость жилья, ₽
Первый взнос, ₽
Срок кредита
от 5.75%
Ставка
от 57 030 ₽
Платеж в месяц
Расчёт носит информационный характер и не является публичной офертой
Похожие объекты





Квартира, 73,2 м², 17/22 эт.







3-комн. квартира, 77,2 м², 21/22 эт.







3-комн. квартира, 77,2 м², 20/22 эт.







3-комн. квартира, 73,2 м², 20/22 эт.
Консультант по новостройкам
9 065 125 ₽
117 500 ₽/м²









