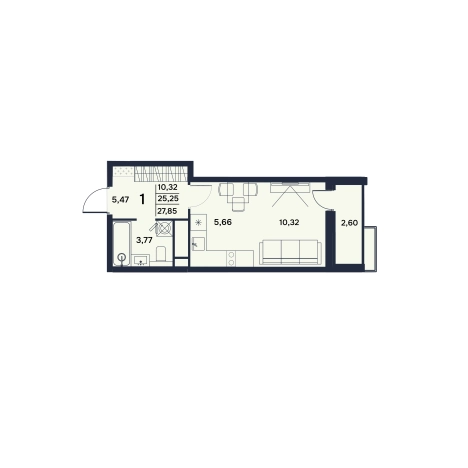
Продается Студия, 30.37 м²
Россия, Пенза, улица Терновского, 100А
30.37 м²
Общая площадь
16 из 16
Этаж
Описание
Преимущества жилого комплекса:
- Кирпичные дома. Надёжные и долговечные материалы обеспечивают высокое качество жилья.
- Дизайнерские холлы. Уютные и стильные пространства создают приятное впечатление.
- Бесшумные скоростные лифты. Современные технологии обеспечивают комфорт и безопасность жильцов.
- Собственная котельная. Гарантирует постоянное наличие горячей воды и позволяет экономить на коммунальных платежах.
Территория жилого комплекса «Доброе» открыта только для жителей, ведь двор дома огорожен. Это создаёт атмосферу уюта и безопасности. Во дворе есть всё необходимое для отдыха и развлечений:
- Большая песочница под перголой для малышей.
- Детский городок из экологичных материалов для детей постарше.
- Зона качелей для подростков.
- Цветочные клумбы для прогулок взрослых.
- Тихая садовая комната для спокойного отдыха.
- Удобные лежаки для принятия солнечных ванн.
Жилой комплекс «Доброе» — это идеальное место для комфортной и счастливой жизни!
О квартире
Общая площадь
30.37 м²
Подъезд
2
Этаж
16
Окна выходят
На улицу
О доме
Год постройки
2027
Этажность
16
Количество подъездов
2
Материал постройки
Кирпичный
Материал перекрытий
Ж/б плиты
Отопление
Своя котельная
Пассажирских лифтов
1
Грузовых лифтов
1
Парковка
Наземная
Расположение
Россия, Пенза, улица Терновского, 100А
Ипотечный калькулятор
Заполните 1 анкету — получите предложения от десятков банков на специальных условиях
Программа ипотеки
Стоимость жилья, ₽
Первый взнос, ₽
Срок кредита
от 5.75%
Ставка
от 20 635 ₽
Платеж в месяц
Расчёт носит информационный характер и не является публичной офертой
Консультант по новостройкам
3 279 960 ₽
108 000 ₽/м²






















