Продается 2-комн. квартира, 81 м²
Россия, Пенза, улица Богданова, 31
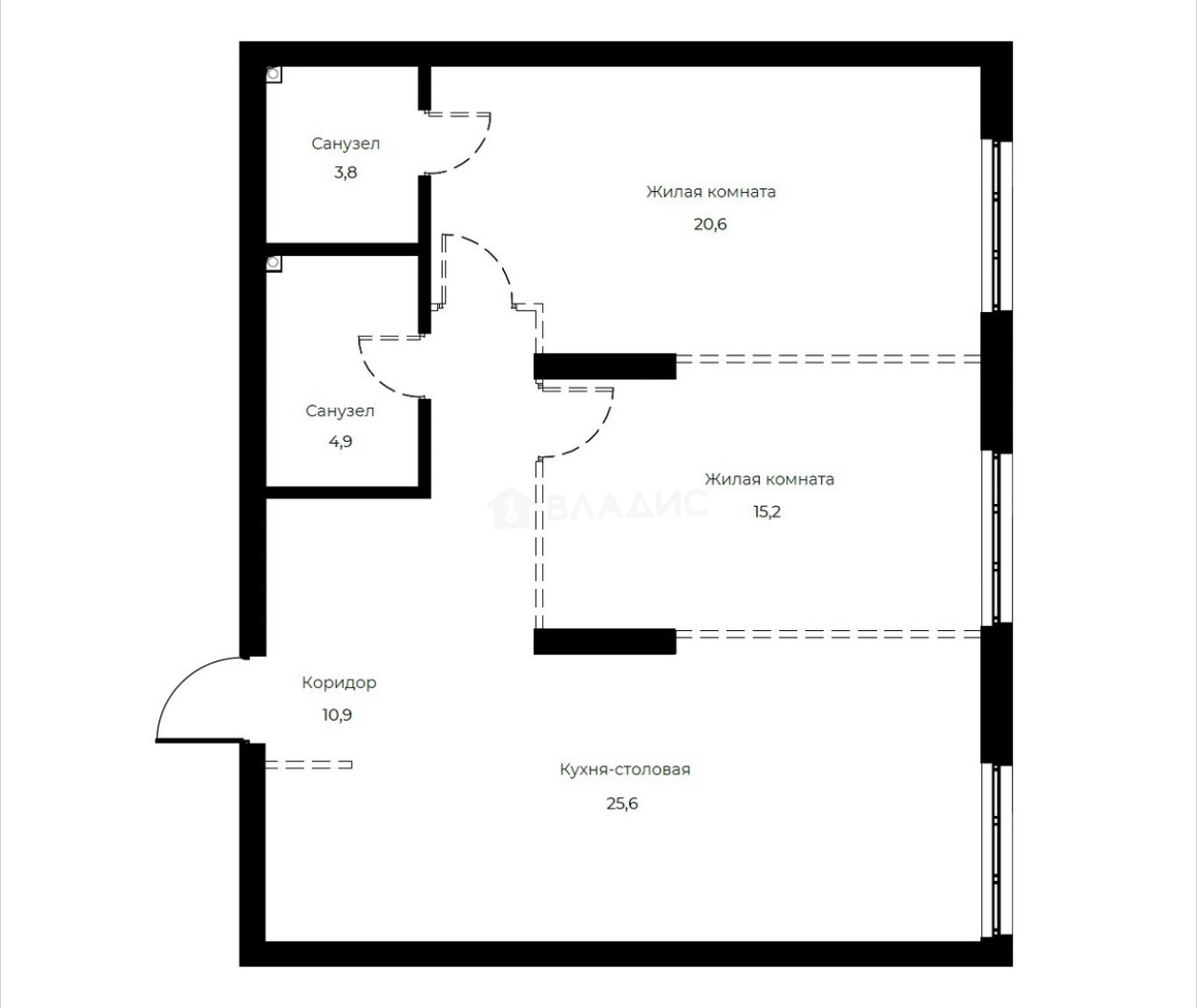
81 м²
Общая площадь
61.4 м²
Жилая площадь
25.6 м²
Площадь кухни
16 из 23
Этаж
Описание
Фасад комплекса выполнен с использованием навесной вентилируемой системы с клинкерной плиткой Whitе Нills, что обеспечивает дополнительную тепло- и звукоизоляцию. Композитные панели разных оттенков придают фасаду особую эстетику и привлекательность.
В ЖК WELLART City есть все, что необходимо для комфортной жизни в современном городе: уютные кафе и рестораны, сервисная среда, разнообразный продуктовый ритейл и обширная инфраструктура. Подземный паркинг обеспечивает безопасность и удобство хранения автомобилей, освобождая двор от машин и создавая пространство для отдыха и прогулок.
О квартире
Общая площадь
81 м²
Жилая площадь
61.4 м²
Площадь кухни
25.6 м²
Подъезд
1
Этаж
16
Окна выходят
На улицу
Ремонт
Стяжка-штукатурка
О доме
Год постройки
2027
Этажность
23
Количество подъездов
2
Материал постройки
Кирпично-монолитный
Материал перекрытий
Монолитные
Отопление
Центральное
Пассажирских лифтов
1
Грузовых лифтов
1
Парковка
Подземная
Расположение
Россия, Пенза, улица Богданова, 31
Ипотечный калькулятор
Заполните 1 анкету — получите предложения от десятков банков на специальных условиях
Программа ипотеки
Стоимость жилья, ₽
Первый взнос, ₽
Срок кредита
от 5.75%
Ставка
от 70 620 ₽
Платеж в месяц
Расчёт носит информационный характер и не является публичной офертой
Похожие объекты
Консультант по новостройкам
11 225 300 ₽
138 584 ₽/м²

















