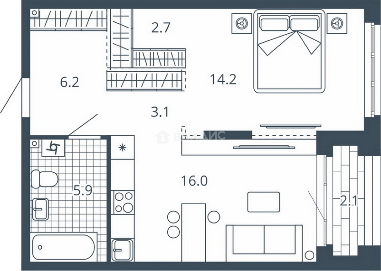
Продается 3-комн. квартира, 85.4 м²
Россия, Пенза, жилой комплекс Центральный квартал Скала Сити
85.4 м²
Общая площадь
39.3 м²
Жилая площадь
25.6 м²
Площадь кухни
12 из 24
Этаж
Описание
Особенностью комплекса являются каскадные террасы и панорамные лифты, которые делают проживание здесь еще более привлекательным. Использование штукатурного и вентилируемого фасадов с применением композитных фиброцементных панелей и клинкерной плитки делает здания не только прочными и долговечными, но и эстетически привлекательными.
Внутренняя территория комплекса организована таким образом, чтобы создать комфортные условия для проживания всех жителей. Различные уровни благоустройства двора делают пространство разнообразным и интересным, обеспечивая зоны для отдыха, спорта и игр.
Жилой комплекс SCALA CITY станет идеальным выбором для тех, кто ценит качество жизни, комфорт и элегантность архитектуры.
О квартире
Общая площадь
85.4 м²
Жилая площадь
39.3 м²
Площадь кухни
25.6 м²
Подъезд
7
Этаж
12
Окна выходят
На улицу
О доме
Год постройки
2028
Этажность
24
Количество подъездов
5
Материал постройки
Кирпично-монолитный
Материал перекрытий
Монолитные
Отопление
Центральное
Пассажирских лифтов
1
Грузовых лифтов
1
Парковка
Подземная
Расположение
Россия, Пенза, жилой комплекс Центральный квартал Скала Сити
Ипотечный калькулятор
Заполните 1 анкету — получите предложения от десятков банков на специальных условиях
Программа ипотеки
Стоимость жилья, ₽
Первый взнос, ₽
Срок кредита
от 5.75%
Ставка
от 73 605 ₽
Платеж в месяц
Расчёт носит информационный характер и не является публичной офертой
Похожие объекты






2-комн. квартира, 88,1 м², 4/18 эт.






2-комн. квартира, 88,1 м², 3/18 эт.






2-комн. квартира, 81,2 м², 6/18 эт.






2-комн. квартира, 88,1 м², 2/18 эт.
Консультант по новостройкам
11 699 800 ₽
137 000 ₽/м²







