Продается 3-комн. квартира, 72.44 м²
Россия, Пенза, улица Терновского, 222
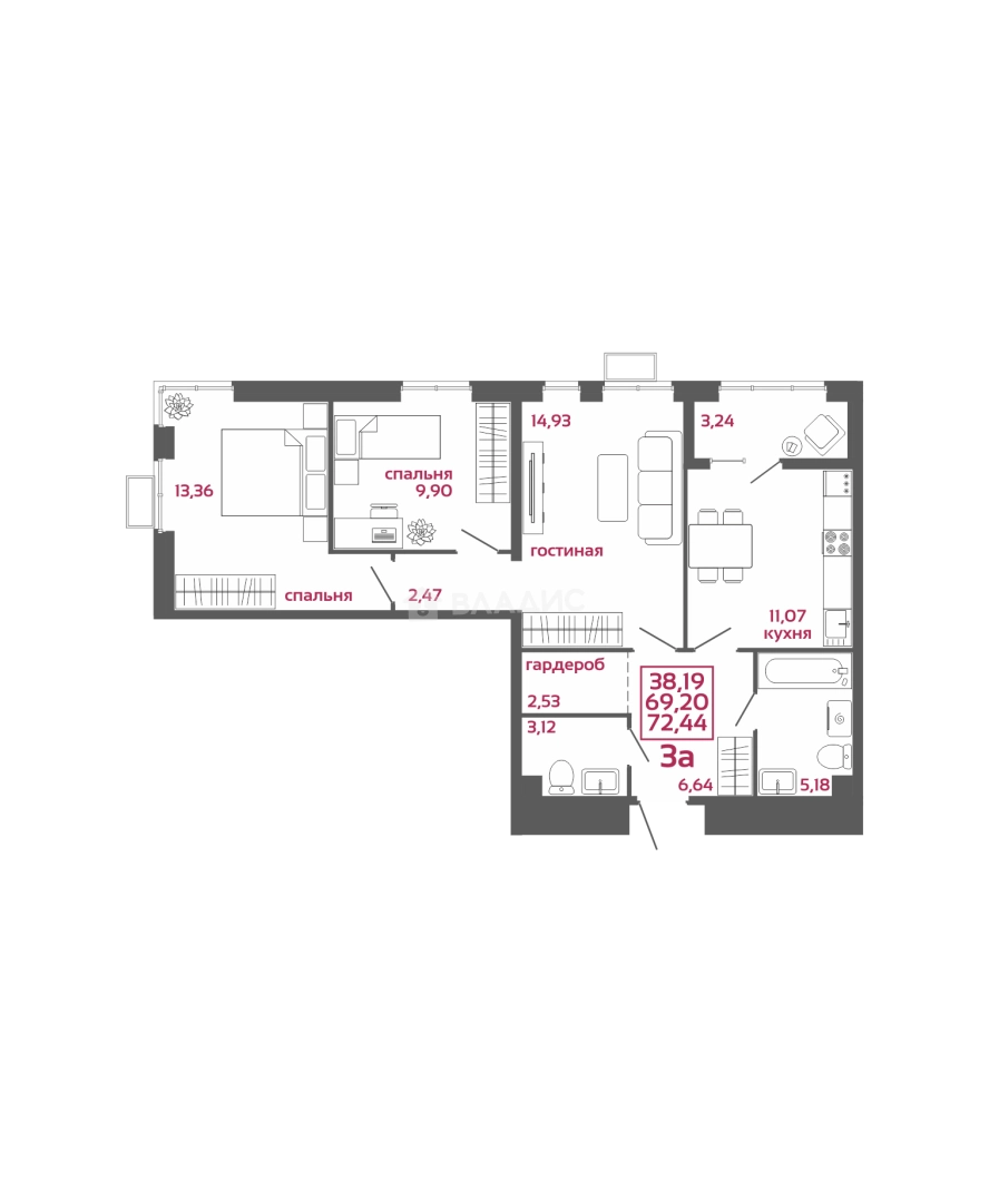
72.44 м²
Общая площадь
38.19 м²
Жилая площадь
11.07 м²
Площадь кухни
14 из 16
Этаж
Описание
✨ Что делает Аэрис особенным?
✨Дизайнерские холлы — встречайте Новый год с чувством премиального комфорта.
✨Просторные колясочные — для удобства всей семьи.
✨Лаунж-зона для гостей — гостеприимство на новом уровне.
✨Премиальные лифты — потому что каждая деталь важна.
✨Безбарьерная среда — забота о каждом жителе.
✨Круглосуточное видеонаблюдение — безопасность 24/7.
✨Двор без машин — комфорт и безопасность для ваших детей.
✨Вместительный подземный паркинг — парковка больше не проблема.
О квартире
Общая площадь
72.44 м²
Жилая площадь
38.19 м²
Площадь кухни
11.07 м²
Подъезд
1
Этаж
14
Окна выходят
На улицу
О доме
Год постройки
2027
Этажность
16
Количество подъездов
2
Материал постройки
Панельный
Материал перекрытий
Ж/б плиты
Отопление
Центральное
Пассажирских лифтов
1
Грузовых лифтов
1
Парковка
Наземная
Расположение
Россия, Пенза, улица Терновского, 222
Ипотечный калькулятор
Заполните 1 анкету — получите предложения от десятков банков на специальных условиях
Программа ипотеки
Стоимость жилья, ₽
Первый взнос, ₽
Срок кредита
от 5.75%
Ставка
от 39 649 ₽
Платеж в месяц
Расчёт носит информационный характер и не является публичной офертой
Консультант по новостройкам
6 302 280 ₽
87 000 ₽/м²



























