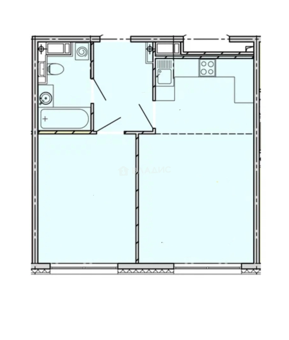
Продается 2-комн. квартира, 48.3 м²
Россия, Пенза, улица Яшиной, 4
48.3 м²
Общая площадь
15 м²
Жилая площадь
24 м²
Площадь кухни
9 из 18
Этаж
Описание
Ищете идеальное жильё? Тогда эта квартира может быть именно тем, что вам нужно!
Квартира находится на 9 этаже 18-этажного дома. Дом блочный с железобетонными перекрытиями и центральным отоплением. Год постройки — 2024 г.
Квартира общей площадью 48,3 кв.м.
Спальня - 15 кв.м.
Кухня-гостиная - 24 кв. м.
Эта квартира — идеальный выбор для комфортного проживания. Здесь сделан евроремонт, ремонт от застройщика полностью демонтирован и сделана своя качественная электроразводка, современный керамогранит в санузле, поэтому вы можете сразу заселиться и наслаждаться жизнью в уютной обстановке.
Расположение дома обеспечивает удобный доступ ко всему необходимому. Рядом есть магазины, школы, детские сады и другие учреждения. Также возле дома имеется наземная парковка, где всегда можно найти свободное место.
Не упустите свой шанс стать владельцем этой замечательной квартиры! Мы гарантируем безопасную сделку и юридическую поддержку нашим клиентам. Поможем одобрить ипотеку с сниженной ставкой. Звоните прямо сейчас!
О квартире
Общая площадь
48.3 м²
Жилая площадь
15 м²
Площадь кухни
24 м²
Площадь комнат
15 м²
Подъезд
4
Этаж
9
Расположение квартиры
не угловая
Окна выходят
На улицу
Совмещенных санузлов
1
Ремонт
Евро
О доме
Год постройки
2024
Этажность
18
Количество подъездов
5
Материал постройки
Блочный
Материал перекрытий
Ж/б плиты
Отопление
Центральное
Пассажирских лифтов
1
Парковка
Наземная
Расположение
Россия, Пенза, улица Яшиной, 4
Ипотечный калькулятор
Заполните 1 анкету — получите предложения от десятков банков на специальных условиях
Программа ипотеки
Стоимость жилья, ₽
Первый взнос, ₽
Срок кредита
от 5.75%
Ставка
от 27 681 ₽
Платеж в месяц
Расчёт носит информационный характер и не является публичной офертой
Похожие объекты
Мосягина Анастасия
Главный партнер компании
Предложите свою цену
4 400 000 ₽
91 097 ₽/м²


















































































