Продается 3-комн. квартира, 79 м²
Россия, Пенза, Ново-Казанская улица, 6Г
79 м²
Общая площадь
45 м²
Жилая площадь
14 м²
Площадь кухни
9 из 14
Этаж
Описание
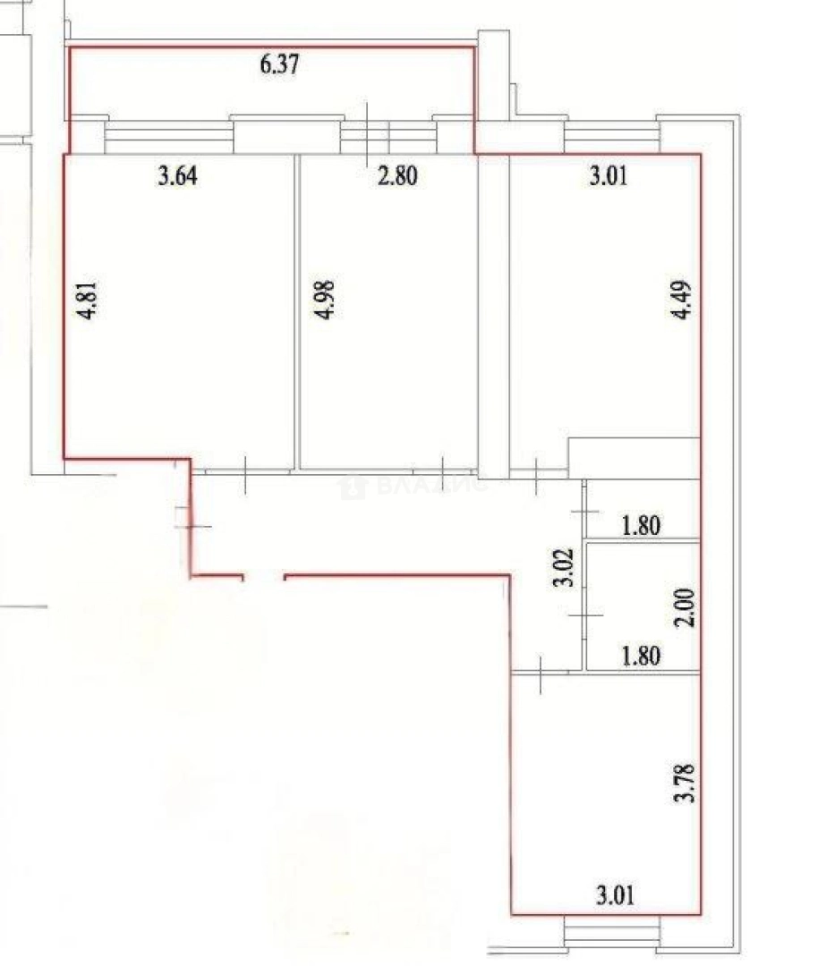
- Общая площадь - 79 кв.м.
- Жилая площадь - 45 кв.м.
- Кухня - 14 кв.м.
- Санузел - 3,6+1,8 кв.м.
- Лоджия - 6,37 кв.м.
Главные достоинства:
- Кирпичный дом 2020 года постройки от надёжного застройщика.
- Огороженная территория.
- Новая современная детская площадка.
- Удобная, большая парковка во дворе дома.
- В подъезде есть отдельная большая зона для колясок, велосипедов, самокатов и т.д.
- Квартира с полной отделкой без вложений, остаётся: гардеробная, кухонный гарнитур со встроенной панелью Bosch, вытяжка.
- Отопительные радиаторы с регулировкой, окна ПВХ, лучевая разводка отопления по полу, индивидуальная подача теплоэнергии в квартиру (экономия на отопительный сезон).
-Панорамная лоджия с отличными видовыми характеристиками, квартира просторная и светлая.
- Территория дома ограждена, ведется видеонаблюдение.
Готовое жильё! Заезжай и живи!
Инфраструктура:
- Во дворе детский садик, в шаговой доступности: школа, остановка общественного транспорта, продуктовые магазины, аптеки, детский клуб Мир знаний.
- Новый ФСК игровых видов спорта! Стадион Локомотив, площадка для баскетбола, футбольное поле, спортивный комплекс Олимпийский, каток Золотая шайба.
- Автодром ДОСААФ, городская поликлиника, больница.
- Студия красоты, строительный магазин.
- Пляж ГПЗ-24, Семейный парк (сосновый бор в миниатюре).
- ТЦ Семейный, супермаркет Атак.
Специальное предложение:
- Помощь в оформлении ипотеки по сниженной процентной ставке.
- Полное юридическое сопровождение сделки.
- Гарантия безопасности при проведении сделки.
Не откладывайте решение о покупке — запишитесь на просмотр прямо сейчас! Наши специалисты ответят на все вопросы и помогут организовать удобное для вас время просмотра.
Звоните — и мы поможем воплотить вашу мечту о собственном жилье в реальность!
О квартире
Общая площадь
79 м²
Жилая площадь
45 м²
Площадь кухни
14 м²
Площадь комнат
17,5+14+13,5 м²
Высота потолков
27 м
Подъезд
1
Этаж
9
Расположение квартиры
не угловая
Окна выходят
На улицу, Во двор
Раздельных санузлов
1
О доме
Год постройки
2020
Этажность
14
Количество подъездов
4
Материал постройки
Кирпичный
Материал перекрытий
Ж/б плиты
Отопление
Центральное
Пассажирских лифтов
1
Грузовых лифтов
1
Парковка
Наземная
Огороженная территория
Да
Расположение
Россия, Пенза, Ново-Казанская улица, 6Г
Ипотечный калькулятор
Заполните 1 анкету — получите предложения от десятков банков на специальных условиях
Программа ипотеки
Стоимость жилья, ₽
Первый взнос, ₽
Срок кредита
от 5.75%
Ставка
от 55 362 ₽
Платеж в месяц
Расчёт носит информационный характер и не является публичной офертой
Похожие объекты
Козлов Владислав
Специалист по недвижимости
Предложите свою цену
8 800 000 ₽
111 392 ₽/м²




































































































































