Продается 2-комн. квартира, 59.6 м²
Россия, Пенза, Октябрьский район, жилой комплекс Лугометрия, с11
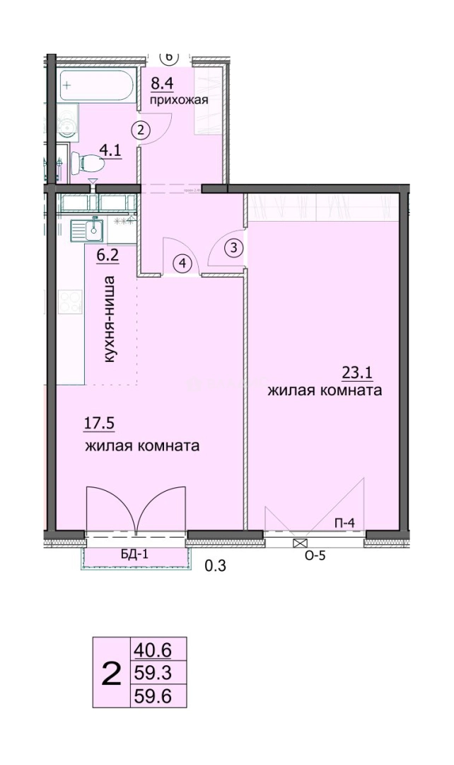
59.6 м²
Общая площадь
41 м²
Жилая площадь
6.2 м²
Площадь кухни
15 из 18
Этаж
Описание
В кварталах и дворах — ландшафтный парковый дизайн, через всю территорию комплекса проходит великолепный бульвар с зонами отдыха. Дети с удовольствием смогут играть на площадках, где используется лучшее игровое и спортивное оборудование, тренажеры и арт-объекты.
Здесь будут своя школа и детские сады, футбольное поле, хоккейная и баскетбольная площадки и фитнес-центры в шаговой доступности, новые торговые центры, магазины и офисы крупных компаний.
Именно комплексные решения, продуманные для удобства жизни людей — это и есть отличительная особенность "Лугометрии".
О квартире
Общая площадь
59.6 м²
Жилая площадь
41 м²
Площадь кухни
6.2 м²
Подъезд
1
Этаж
15
Окна выходят
На улицу
Ремонт
Чистовая
О доме
Год постройки
2022
Этажность
18
Количество подъездов
1
Материал постройки
Панельный
Материал перекрытий
Ж/б плиты
Отопление
Центральное
Пассажирских лифтов
1
Грузовых лифтов
1
Парковка
Наземная
Расположение
Россия, Пенза, Октябрьский район, жилой комплекс Лугометрия, с11
Ипотечный калькулятор
Заполните 1 анкету — получите предложения от десятков банков на специальных условиях
Программа ипотеки
Стоимость жилья, ₽
Первый взнос, ₽
Срок кредита
от 5.75%
Ставка
от 41 245 ₽
Платеж в месяц
Расчёт носит информационный характер и не является публичной офертой
Похожие объекты






2-комн. квартира, 57,3 м², 16/17 эт.







2-комн. квартира, 59,3 м², 2/22 эт.







2-комн. квартира, 58,5 м², 3/22 эт.







2-комн. квартира, 54,5 м², 7/22 эт.
Консультант по новостройкам
6 556 000 ₽
110 000 ₽/м²








