Продается 2-комн. квартира, 48.4 м²
Россия, Пенза, Октябрьский район, жилой комплекс Лугометрия, с15
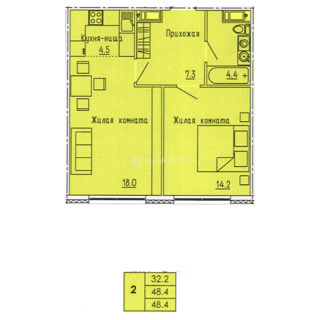
48.4 м²
Общая площадь
32.2 м²
Жилая площадь
4.5 м²
Площадь кухни
3 из 18
Этаж
Описание
В кварталах и дворах — ландшафтный парковый дизайн, через всю территорию комплекса проходит великолепный бульвар с зонами отдыха. Дети с удовольствием смогут играть на площадках, где используется лучшее игровое и спортивное оборудование, тренажеры и арт-объекты.
Здесь будут своя школа и детские сады, футбольное поле, хоккейная и баскетбольная площадки и фитнес-центры в шаговой доступности, новые торговые центры, магазины и офисы крупных компаний.
Именно комплексные решения, продуманные для удобства жизни людей — это и есть отличительная особенность "Лугометрии".
О квартире
Общая площадь
48.4 м²
Жилая площадь
32.2 м²
Площадь кухни
4.5 м²
Подъезд
3
Этаж
3
Окна выходят
На улицу
Ремонт
Чистовая
О доме
Год постройки
2024
Этажность
18
Количество подъездов
4
Материал постройки
Панельный
Материал перекрытий
Ж/б плиты
Отопление
Центральное
Пассажирских лифтов
1
Грузовых лифтов
1
Парковка
Наземная
Расположение
Россия, Пенза, Октябрьский район, жилой комплекс Лугометрия, с15
Ипотечный калькулятор
Заполните 1 анкету — получите предложения от десятков банков на специальных условиях
Программа ипотеки
Стоимость жилья, ₽
Первый взнос, ₽
Срок кредита
от 5.75%
Ставка
от 31 058 ₽
Платеж в месяц
Расчёт носит информационный характер и не является публичной офертой
Похожие объекты







1-комн. квартира, 42,1 м², 13/22 эт.




1-комн. квартира, 42,1 м², 3/17 эт.






1-комн. квартира, 42,1 м², 15/17 эт.







1-комн. квартира, 42,1 м², 15/22 эт.
Консультант по новостройкам
4 936 800 ₽
102 000 ₽/м²







