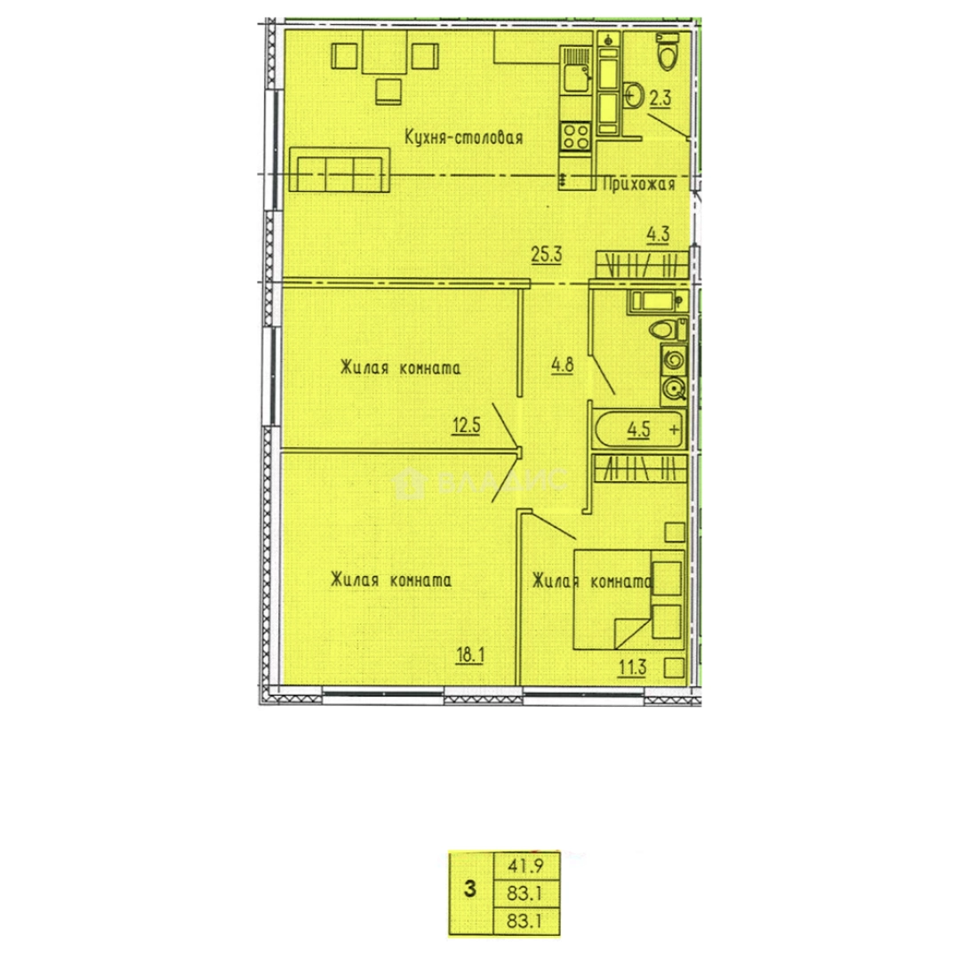
Продается 3-комн. квартира, 83.1 м²
Россия, Пенза, Октябрьский район, жилой комплекс Лугометрия, с15
83.1 м²
Общая площадь
41.9 м²
Жилая площадь
25.3 м²
Площадь кухни
8 из 18
Этаж
Описание
В кварталах и дворах — ландшафтный парковый дизайн, через всю территорию комплекса проходит великолепный бульвар с зонами отдыха. Дети с удовольствием смогут играть на площадках, где используется лучшее игровое и спортивное оборудование, тренажеры и арт-объекты.
Здесь будут своя школа и детские сады, футбольное поле, хоккейная и баскетбольная площадки и фитнес-центры в шаговой доступности, новые торговые центры, магазины и офисы крупных компаний.
Именно комплексные решения, продуманные для удобства жизни людей — это и есть отличительная особенность "Лугометрии".
О квартире
Общая площадь
83.1 м²
Жилая площадь
41.9 м²
Площадь кухни
25.3 м²
Подъезд
3
Этаж
8
Окна выходят
На улицу
Ремонт
Чистовая
О доме
Год постройки
2024
Этажность
18
Количество подъездов
4
Материал постройки
Панельный
Материал перекрытий
Ж/б плиты
Отопление
Центральное
Пассажирских лифтов
1
Грузовых лифтов
1
Парковка
Наземная
Расположение
Россия, Пенза, Октябрьский район, жилой комплекс Лугометрия, с15
Ипотечный калькулятор
Заполните 1 анкету — получите предложения от десятков банков на специальных условиях
Программа ипотеки
Стоимость жилья, ₽
Первый взнос, ₽
Срок кредита
от 5.75%
Ставка
от 50 188 ₽
Платеж в месяц
Расчёт носит информационный характер и не является публичной офертой
Похожие объекты






3-комн. квартира, 70,7 м², 4/17 эт.





Квартира, 73,2 м², 17/22 эт.






3-комн. квартира, 70,7 м², 8/17 эт.






3-комн. квартира, 70,7 м², 10/17 эт.
Консультант по новостройкам
7 977 600 ₽
96 000 ₽/м²





