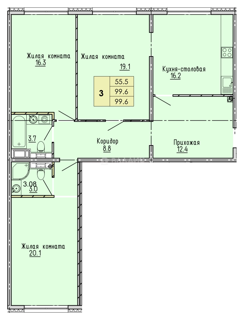
Продается 3-комн. квартира, 99.6 м²
Россия, Пенза, Октябрьский район, жилой комплекс Лугометрия, с19
99.6 м²
Общая площадь
11 из 18
Этаж
Описание
В кварталах и дворах — ландшафтный парковый дизайн, через всю территорию комплекса проходит великолепный бульвар с зонами отдыха. Дети с удовольствием смогут играть на площадках, где используется лучшее игровое и спортивное оборудование, тренажеры и арт-объекты.
Здесь будут своя школа и детские сады, футбольное поле, хоккейная и баскетбольная площадки и фитнес-центры в шаговой доступности, новые торговые центры, магазины и офисы крупных компаний.
Именно комплексные решения, продуманные для удобства жизни людей — это и есть отличительная особенность "Лугометрии".
О квартире
Общая площадь
99.6 м²
Подъезд
2
Этаж
11
Окна выходят
На улицу
О доме
Год постройки
2023
Этажность
18
Количество подъездов
4
Материал постройки
Панельный
Материал перекрытий
Ж/б плиты
Отопление
Центральное
Пассажирских лифтов
1
Грузовых лифтов
1
Парковка
Наземная
Расположение
Россия, Пенза, Октябрьский район, жилой комплекс Лугометрия, с19
Ипотечный калькулятор
Заполните 1 анкету — получите предложения от десятков банков на специальных условиях
Программа ипотеки
Стоимость жилья, ₽
Первый взнос, ₽
Срок кредита
от 5.75%
Ставка
от 60 780 ₽
Платеж в месяц
Расчёт носит информационный характер и не является публичной офертой
Похожие объекты







3-комн. квартира, 87,5 м², 18/22 эт.







3-комн. квартира, 87,5 м², 19/22 эт.







3-комн. квартира, 87,5 м², 20/22 эт.







3-комн. квартира, 87,5 м², 21/22 эт.
Консультант по новостройкам
9 661 200 ₽
97 000 ₽/м²









