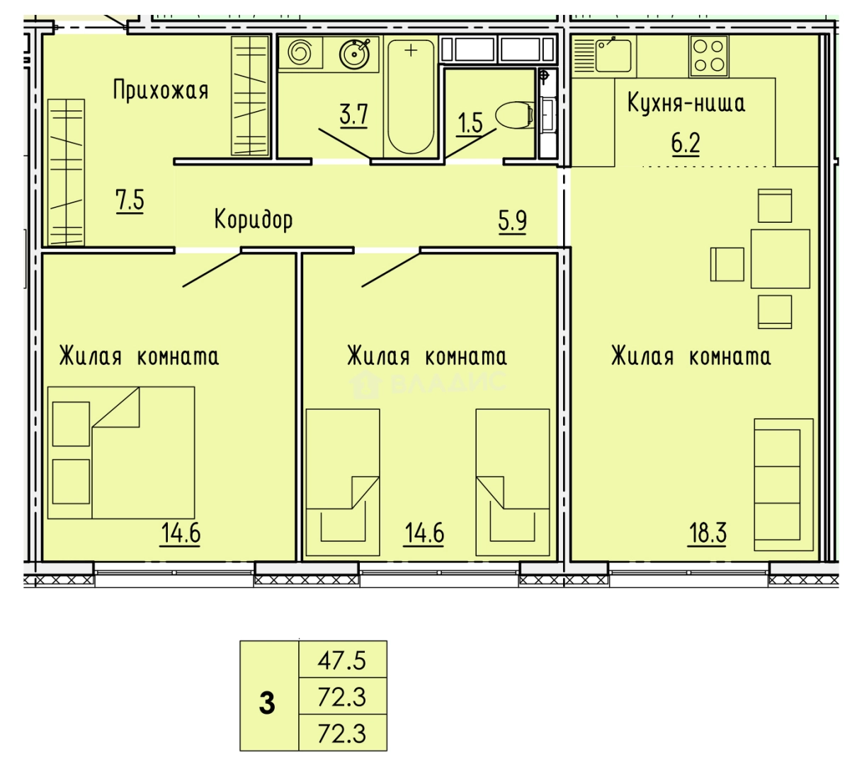
Продается 3-комн. квартира, 72.3 м²
Россия, Пенза, Октябрьский район, жилой комплекс Лугометрия, с20
72.3 м²
Общая площадь
47.5 м²
Жилая площадь
6.2 м²
Площадь кухни
4 из 18
Этаж
Описание
В кварталах и дворах — ландшафтный парковый дизайн, через всю территорию комплекса проходит великолепный бульвар с зонами отдыха. Дети с удовольствием смогут играть на площадках, где используется лучшее игровое и спортивное оборудование, тренажеры и арт-объекты.
Здесь будут своя школа и детские сады, футбольное поле, хоккейная и баскетбольная площадки и фитнес-центры в шаговой доступности, новые торговые центры, магазины и офисы крупных компаний.
Именно комплексные решения, продуманные для удобства жизни людей — это и есть отличительная особенность "Лугометрии".
О квартире
Общая площадь
72.3 м²
Жилая площадь
47.5 м²
Площадь кухни
6.2 м²
Подъезд
5
Этаж
4
Окна выходят
На улицу
О доме
Год постройки
2023
Этажность
18
Количество подъездов
3
Материал постройки
Панельный
Материал перекрытий
Ж/б плиты
Отопление
Центральное
Пассажирских лифтов
1
Грузовых лифтов
1
Парковка
Наземная
Расположение
Россия, Пенза, Октябрьский район, жилой комплекс Лугометрия, с20
Ипотечный калькулятор
Заполните 1 анкету — получите предложения от десятков банков на специальных условиях
Программа ипотеки
Стоимость жилья, ₽
Первый взнос, ₽
Срок кредита
от 5.75%
Ставка
от 44 120 ₽
Платеж в месяц
Расчёт носит информационный характер и не является публичной офертой
Похожие объекты






3-комн. квартира, 71,7 м², 2/17 эт.






2-комн. квартира, 61,6 м², 16/17 эт.






2-комн. квартира, 61,6 м², 17/17 эт.






3-комн. квартира, 70,7 м², 5/17 эт.
Консультант по новостройкам
7 013 100 ₽
97 000 ₽/м²






