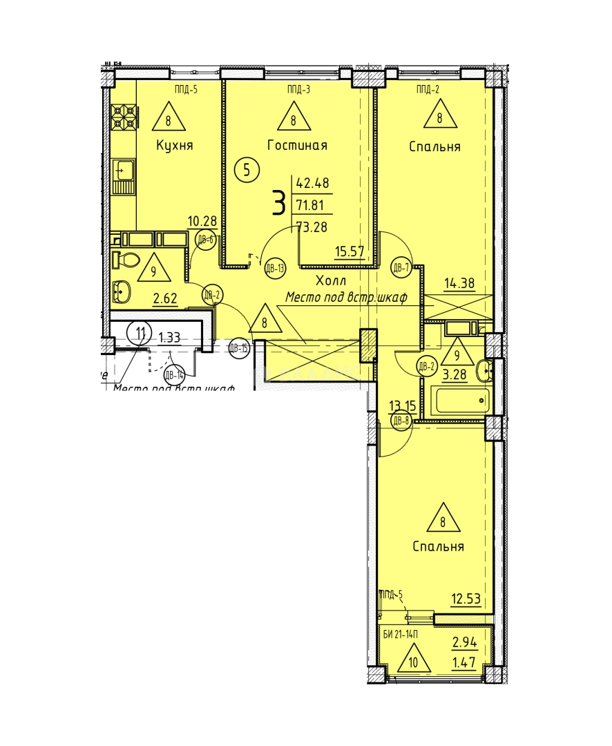
Продается 3-комн. квартира, 73.28 м²
Россия, Пенза, улица 65-летия Победы, с11
73.28 м²
Общая площадь
42.48 м²
Жилая площадь
2 из 18
Этаж
Описание
Такой жилой комплекс подойдет всем: молодой паре, родителям с детьми, взрослым парам и пенсионерам. Его отличает развитая транспортная сеть, позволяющая без затруднений добраться в любую точку города.
О квартире
Общая площадь
73.28 м²
Жилая площадь
42.48 м²
Подъезд
1
Этаж
2
Окна выходят
На улицу
Ремонт
Чистовая
О доме
Год постройки
2024
Этажность
18
Количество подъездов
2
Материал постройки
Панельный
Материал перекрытий
Ж/б плиты
Отопление
Центральное
Пассажирских лифтов
1
Грузовых лифтов
1
Парковка
Наземная
Расположение
Россия, Пенза, улица 65-летия Победы, с11
Ипотечный калькулятор
Заполните 1 анкету — получите предложения от десятков банков на специальных условиях
Программа ипотеки
Стоимость жилья, ₽
Первый взнос, ₽
Срок кредита
от 5.75%
Ставка
от 51 634 ₽
Платеж в месяц
Расчёт носит информационный характер и не является публичной офертой
Похожие объекты





3-комн. квартира, 69,9 м², 16/17 эт.






3-комн. квартира, 71,7 м², 2/17 эт.






3-комн. квартира, 70,7 м², 5/17 эт.






3-комн. квартира, 69,9 м², 14/17 эт.
Консультант по новостройкам
8 207 360 ₽
112 000 ₽/м²






