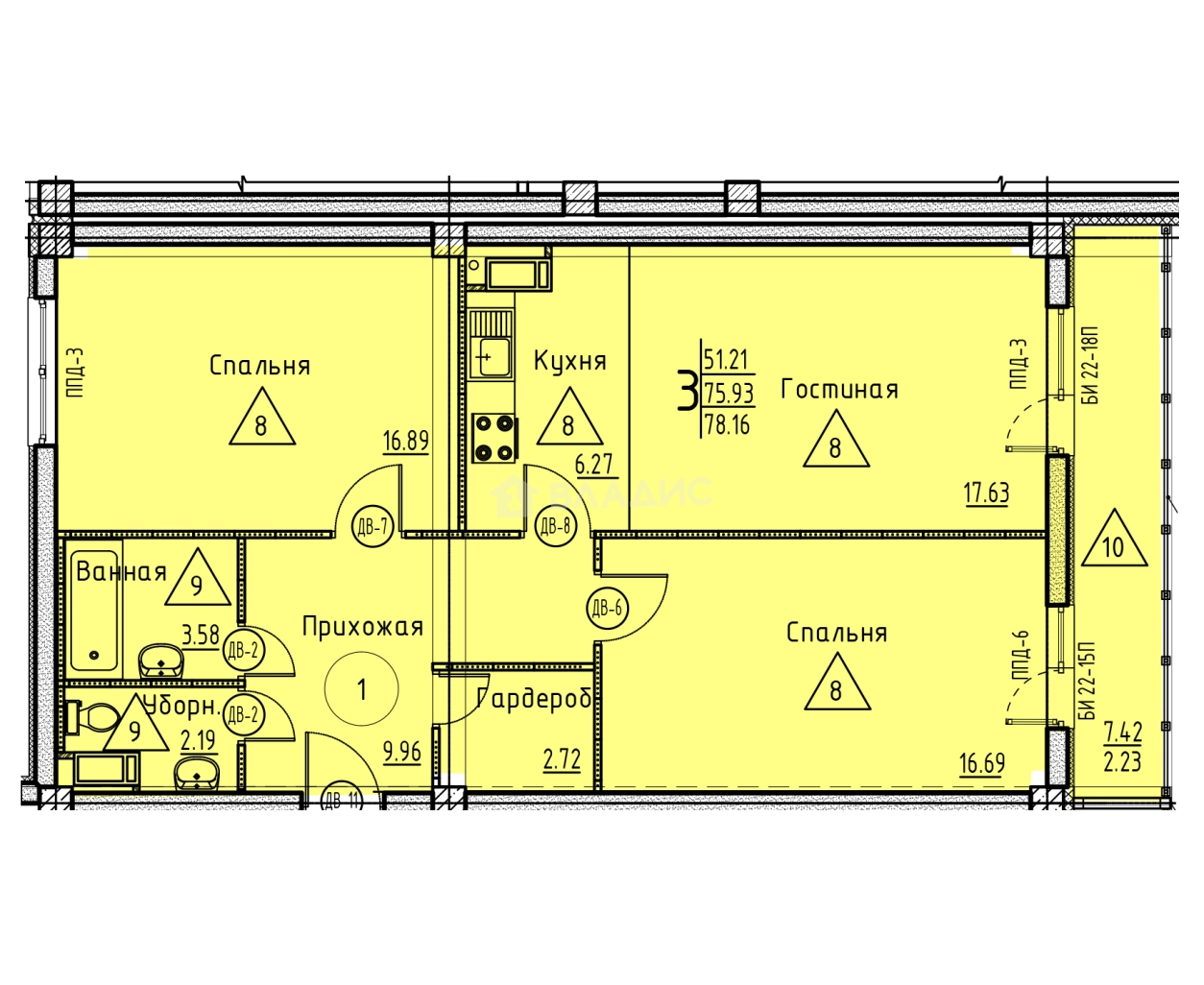
Продается 3-комн. квартира, 78.16 м²
Россия, Пенза, улица 65-летия Победы, с11
78.16 м²
Общая площадь
51.21 м²
Жилая площадь
14 из 18
Этаж
Описание
Такой жилой комплекс подойдет всем: молодой паре, родителям с детьми, взрослым парам и пенсионерам. Его отличает развитая транспортная сеть, позволяющая без затруднений добраться в любую точку города.
О квартире
Общая площадь
78.16 м²
Жилая площадь
51.21 м²
Подъезд
2
Этаж
14
Окна выходят
На улицу
Ремонт
Чистовая
О доме
Год постройки
2024
Этажность
18
Количество подъездов
2
Материал постройки
Панельный
Материал перекрытий
Ж/б плиты
Отопление
Центральное
Пассажирских лифтов
1
Грузовых лифтов
1
Парковка
Наземная
Расположение
Россия, Пенза, улица 65-летия Победы, с11
Ипотечный калькулятор
Заполните 1 анкету — получите предложения от десятков банков на специальных условиях
Программа ипотеки
Стоимость жилья, ₽
Первый взнос, ₽
Срок кредита
от 5.75%
Ставка
от 55 072 ₽
Платеж в месяц
Расчёт носит информационный характер и не является публичной офертой
Похожие объекты





Квартира, 73,2 м², 17/22 эт.







3-комн. квартира, 77,2 м², 21/22 эт.







3-комн. квартира, 77,2 м², 19/22 эт.







3-комн. квартира, 77,2 м², 20/22 эт.
Консультант по новостройкам
8 753 920 ₽
112 000 ₽/м²









