Продается 3-комн. квартира, 98.86 м²
Россия, Пенза, Первомайский район
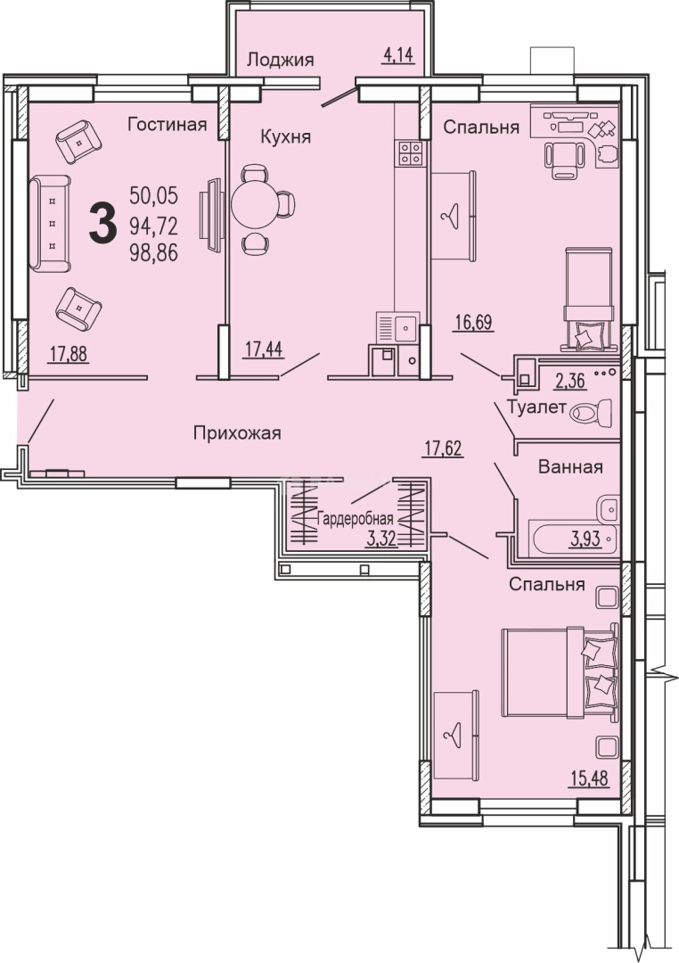
98.86 м²
Общая площадь
50.05 м²
Жилая площадь
17.44 м²
Площадь кухни
1 из 15
Этаж
Описание
Иногда каждому из нас хочется спокойствия и умиротворения. Достаточно — найти укромное место без постороннего шума. В нем легко услышать себя и свои истинные желания. Здесь рождаются ценные идеи, приходит вдохновение и случаются по-настоящему яркие истории. Это и есть место силы.
Дом идеально гармонирует со сложившимся десятилетиями городским пейзажем, добавляет его общему архитектурному звучанию современные ноты.Переменная этажность позволяет, с одной стороны, защитить внутреннее пространство от ветров, а с другой – соблюсти самые высокие стандарты инсоляции жилых помещений.
О квартире
Общая площадь
98.86 м²
Жилая площадь
50.05 м²
Площадь кухни
17.44 м²
Подъезд
1
Этаж
1
Окна выходят
На улицу
Ремонт
Стяжка-штукатурка
О доме
Год постройки
2024
Этажность
15
Количество подъездов
3
Материал постройки
Кирпично-монолитный
Материал перекрытий
Монолитные
Отопление
Центральное
Пассажирских лифтов
1
Грузовых лифтов
1
Парковка
Подземная
Расположение
Россия, Пенза, Первомайский район
Ипотечный калькулятор
Заполните 1 анкету — получите предложения от десятков банков на специальных условиях
Программа ипотеки
Стоимость жилья, ₽
Первый взнос, ₽
Срок кредита
от 5.75%
Ставка
от 68 413 ₽
Платеж в месяц
Расчёт носит информационный характер и не является публичной офертой
Похожие объекты
Консультант по новостройкам
10 874 600 ₽
110 000 ₽/м²

















