Продается 4-комн. квартира, 68.8 м²
Россия, Пенза, улица Луначарского, 7А
68.8 м²
Общая площадь
43 м²
Жилая площадь
7.6 м²
Площадь кухни
5 из 9
Этаж
Описание
Квартира расположена на 5 этаже 9-этажного кирпичного дома 1982 года постройки.
Квартира угловая с видом на изумительный закат.
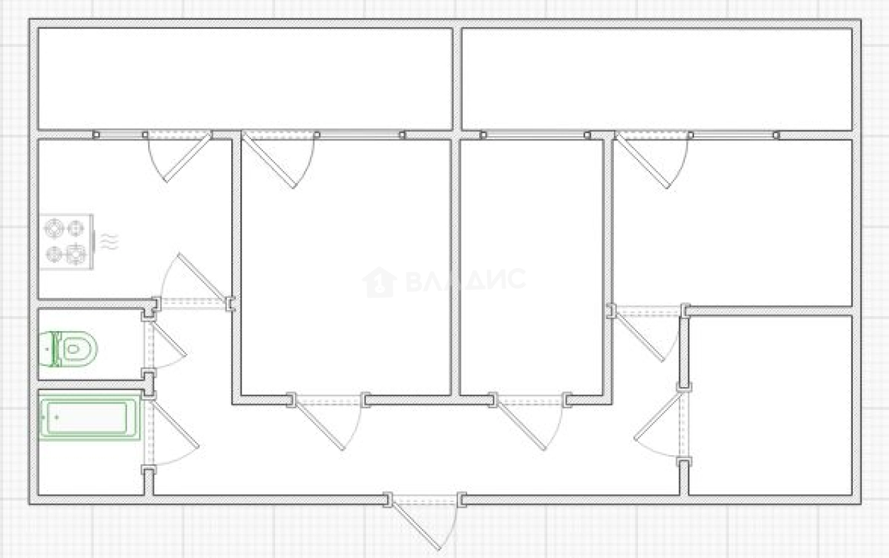
Общая площадь 68.8 кв.м.
Жилая площадь 43 кв.м. (14.4+11.4+10.2+7)
Кухня 7.6 кв.м.
Санузел раздельный.
Имеется большой тамбур на 2 квартиры, где расположены шкафы и полки для обуви.
Квартира в хорошем ЖИЛОМ состоянии:
-Установлены пластиковые окна.
-Cанузел в кафеле.
-Полы-стяжка, не деревянные
-Остается вся мебель.
-2 Роскошные лоджии
-Очень просторный коридор
В квартире очень ТИХО. Кирпичные стены. Замечательные соседи.
Огромным ПЛЮСОМ является расположение дома. В шаговой доступности находится:
-Поликлиника
-Школа
-Детский сад
-WB
-Ozon
-Продуктовые магазины
-Автовокзал
СОБСТВЕННИК один совершеннолетний. Документы готовы к сделке.
Рассмотрим любую форму оплаты!
О квартире
Общая площадь
68.8 м²
Жилая площадь
43 м²
Площадь кухни
7.6 м²
Площадь комнат
14.4+11.4+10.2+7 м²
Высота потолков
2.6 м
Подъезд
3
Этаж
5
Расположение квартиры
угловая
Окна выходят
На улицу
Раздельных санузлов
1
О доме
Год постройки
1983
Этажность
9
Количество подъездов
3
Материал постройки
Кирпичный
Материал перекрытий
Ж/б плиты
Отопление
Центральное
Пассажирских лифтов
1
Парковка
Наземная
Расположение
Россия, Пенза, улица Луначарского, 7А
Ипотечный калькулятор
Заполните 1 анкету — получите предложения от десятков банков на специальных условиях
Программа ипотеки
Стоимость жилья, ₽
Первый взнос, ₽
Срок кредита
от 5.75%
Ставка
от 37 432 ₽
Платеж в месяц
Расчёт носит информационный характер и не является публичной офертой
Пакскина Анжела
Специалист по недвижимости
Предложите свою цену
5 950 000 ₽
86 483 ₽/м²




































































