Продается 4-комн. квартира, 117.94 м²
Россия, Пенза, Октябрьский район, жилой комплекс Лугометрия, с9
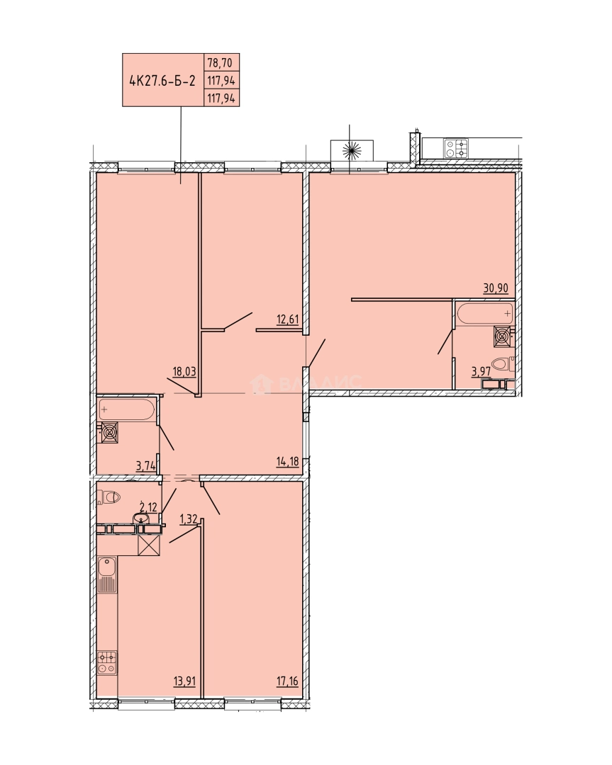
117.94 м²
Общая площадь
6 из 18
Этаж
Описание
О квартире
Общая площадь
117.94 м²
Подъезд
4
Этаж
6
Окна выходят
На улицу
Ремонт
Чистовая
О доме
Год постройки
2024
Этажность
18
Количество подъездов
5
Материал постройки
Панельный
Материал перекрытий
Ж/б плиты
Отопление
Центральное
Пассажирских лифтов
1
Грузовых лифтов
1
Парковка
Наземная
Расположение
Россия, Пенза, Октябрьский район, жилой комплекс Лугометрия, с9
Ипотечный калькулятор
Заполните 1 анкету — получите предложения от десятков банков на специальных условиях
Программа ипотеки
Стоимость жилья, ₽
Первый взнос, ₽
Срок кредита
от 5.75%
Ставка
от 71 971 ₽
Платеж в месяц
Расчёт носит информационный характер и не является публичной офертой
Похожие объекты







3-комн. квартира, 100,7 м², 22/22 эт.






3-комн. квартира, 108,8 м², 16/17 эт.





3-комн. квартира, 108,8 м², 10/17 эт.






3-комн. квартира, 108,8 м², 13/17 эт.
Консультант по новостройкам
11 440 180 ₽
97 000 ₽/м²





