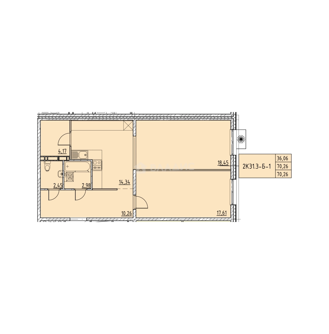
Продается 2-комн. квартира, 70.26 м²
Россия, Пенза, Октябрьский район, жилой комплекс Лугометрия, с10
70.26 м²
Общая площадь
5 из 18
Этаж
Описание
О квартире
Общая площадь
70.26 м²
Подъезд
4
Этаж
5
Окна выходят
На улицу
Ремонт
Чистовая
О доме
Год постройки
2024
Этажность
18
Количество подъездов
5
Материал постройки
Панельный
Материал перекрытий
Ж/б плиты
Отопление
Центральное
Пассажирских лифтов
1
Грузовых лифтов
1
Парковка
Наземная
Расположение
Россия, Пенза, Октябрьский район, жилой комплекс Лугометрия, с10
Ипотечный калькулятор
Заполните 1 анкету — получите предложения от десятков банков на специальных условиях
Программа ипотеки
Стоимость жилья, ₽
Первый взнос, ₽
Срок кредита
от 5.75%
Ставка
от 45 086 ₽
Платеж в месяц
Расчёт носит информационный характер и не является публичной офертой
Похожие объекты






3-комн. квартира, 70,7 м², 4/17 эт.






3-комн. квартира, 70,7 м², 8/17 эт.






3-комн. квартира, 70,7 м², 10/17 эт.






2-комн. квартира, 61,6 м², 7/17 эт.
Консультант по новостройкам
7 166 520 ₽
102 000 ₽/м²






