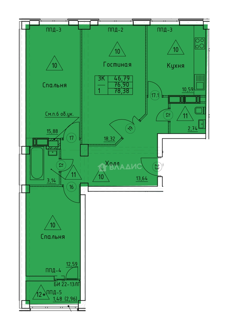
Продается 3-комн. квартира, 80.78 м²
Россия, Пенза, улица 65-летия Победы, с11
80.78 м²
Общая площадь
2 из 18
Этаж
Описание
О квартире
Общая площадь
80.78 м²
Подъезд
11
Этаж
2
Окна выходят
На улицу
Ремонт
White box
О доме
Год постройки
2024
Этажность
18
Количество подъездов
3
Материал постройки
Панельный
Материал перекрытий
Ж/б плиты
Отопление
Центральное
Пассажирских лифтов
1
Грузовых лифтов
1
Парковка
Наземная
Расположение
Россия, Пенза, улица 65-летия Победы, с11
Ипотечный калькулятор
Заполните 1 анкету — получите предложения от десятков банков на специальных условиях
Программа ипотеки
Стоимость жилья, ₽
Первый взнос, ₽
Срок кредита
от 5.75%
Ставка
от 39 385 ₽
Платеж в месяц
Расчёт носит информационный характер и не является публичной офертой
Консультант по новостройкам
6 260 450 ₽
77 500 ₽/м²


























