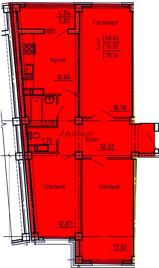
Продается 3-комн. квартира, 78.34 м²
Россия, Пенза, улица 65-летия Победы, с11
78.34 м²
Общая площадь
2 из 18
Этаж
Описание
О квартире
Общая площадь
78.34 м²
Подъезд
7
Этаж
2
Окна выходят
На улицу
Ремонт
White box
О доме
Год постройки
2023
Этажность
18
Количество подъездов
3
Материал постройки
Панельный
Материал перекрытий
Ж/б плиты
Отопление
Центральное
Пассажирских лифтов
1
Грузовых лифтов
1
Парковка
Наземная
Расположение
Россия, Пенза, улица 65-летия Победы, с11
Ипотечный калькулятор
Заполните 1 анкету — получите предложения от десятков банков на специальных условиях
Программа ипотеки
Стоимость жилья, ₽
Первый взнос, ₽
Срок кредита
от 5.75%
Ставка
от 37 703 ₽
Платеж в месяц
Расчёт носит информационный характер и не является публичной офертой
Похожие объекты
Консультант по новостройкам
5 993 010 ₽
76 500 ₽/м²





















