Продается 2-комн. квартира, 53.1 м²
Россия, Пенза, Октябрьский район, жилой комплекс Лугометрия, с14
53.1 м²
Общая площадь
14 из 17
Этаж
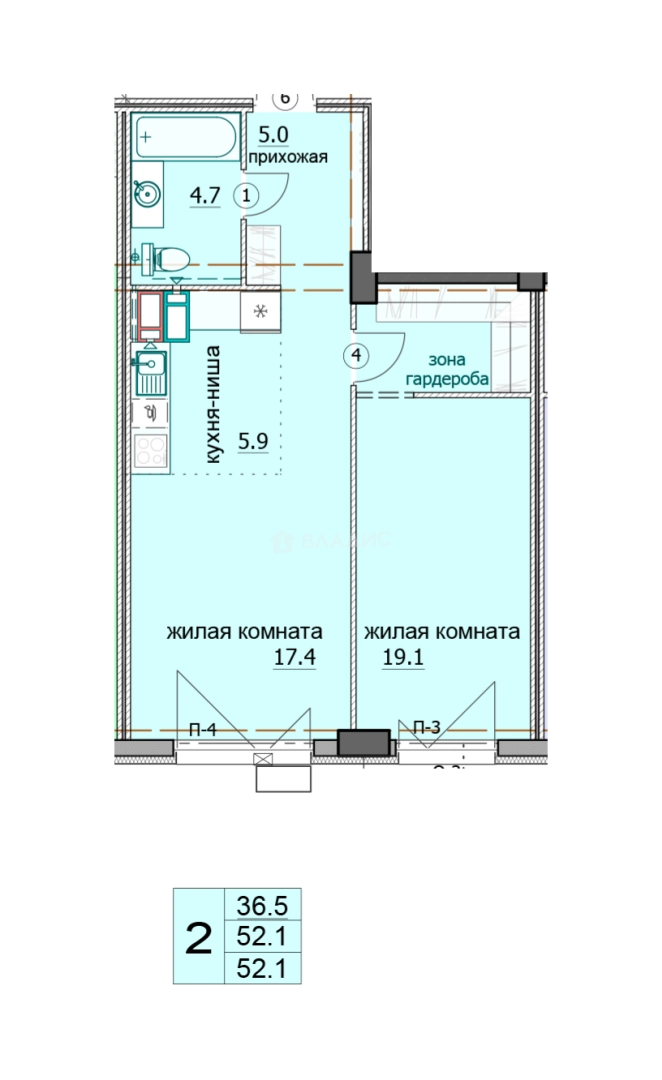
Описание
О квартире
Общая площадь
53.1 м²
Подъезд
1
Этаж
14
Окна выходят
На улицу
Ремонт
Чистовая
О доме
Год постройки
2024
Этажность
17
Количество подъездов
1
Материал постройки
Панельный
Материал перекрытий
Ж/б плиты
Отопление
Центральное
Пассажирских лифтов
1
Грузовых лифтов
1
Парковка
Наземная
Расположение
Россия, Пенза, Октябрьский район, жилой комплекс Лугометрия, с14
Ипотечный калькулятор
Заполните 1 анкету — получите предложения от десятков банков на специальных условиях
Программа ипотеки
Стоимость жилья, ₽
Первый взнос, ₽
Срок кредита
от 5.75%
Ставка
от 32 404 ₽
Платеж в месяц
Расчёт носит информационный характер и не является публичной офертой
Похожие объекты






1-комн. квартира, 48,8 м², 9/17 эт.






1-комн. квартира, 53,2 м², 6/17 эт.




1-комн. квартира, 51,7 м², 2/17 эт.






1-комн. квартира, 48,8 м², 16/17 эт.
Консультант по новостройкам
5 150 700 ₽
97 000 ₽/м²







