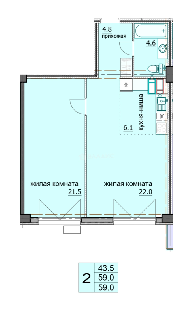
Продается 2-комн. квартира, 60.1 м²
Россия, Пенза, Октябрьский район, жилой комплекс Лугометрия, с13
60.1 м²
Общая площадь
10 из 17
Этаж
Описание
В кварталах и дворах — ландшафтный парковый дизайн, через всю территорию комплекса проходит великолепный бульвар с зонами отдыха. Дети с удовольствием смогут играть на площадках, где используется лучшее игровое и спортивное оборудование, тренажеры и арт-объекты.
Здесь будут своя школа и детские сады, футбольное поле, хоккейная и баскетбольная площадки и фитнес-центры в шаговой доступности, новые торговые центры, магазины и офисы крупных компаний.
Именно комплексные решения, продуманные для удобства жизни людей — это и есть отличительная особенность "Лугометрии".
О квартире
Общая площадь
60.1 м²
Подъезд
1
Этаж
10
Окна выходят
На улицу
Ремонт
Чистовая
О доме
Год постройки
2024
Этажность
17
Количество подъездов
1
Материал постройки
Панельный
Материал перекрытий
Ж/б плиты
Отопление
Центральное
Пассажирских лифтов
1
Грузовых лифтов
1
Парковка
Наземная
Расположение
Россия, Пенза, Октябрьский район, жилой комплекс Лугометрия, с13
Ипотечный калькулятор
Заполните 1 анкету — получите предложения от десятков банков на специальных условиях
Программа ипотеки
Стоимость жилья, ₽
Первый взнос, ₽
Срок кредита
от 5.75%
Ставка
от 36 676 ₽
Платеж в месяц
Расчёт носит информационный характер и не является публичной офертой
Похожие объекты





2-комн. квартира, 53,6 м², 4/17 эт.







2-комн. квартира, 55,6 м², 8/22 эт.





2-комн. квартира, 56,3 м², 16/17 эт.






2-комн. квартира, 53,6 м², 14/17 эт.
Консультант по новостройкам
5 829 700 ₽
97 000 ₽/м²





