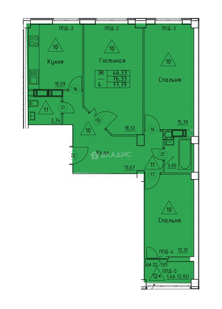
Продается 3-комн. квартира, 79.46 м²
Россия, Пенза, улица 65-летия Победы, с11
79.46 м²
Общая площадь
2 из 18
Этаж
Описание
О квартире
Общая площадь
79.46 м²
Подъезд
11
Этаж
2
Окна выходят
На улицу
Ремонт
White box
О доме
Год постройки
2024
Этажность
18
Количество подъездов
3
Материал постройки
Панельный
Материал перекрытий
Ж/б плиты
Отопление
Центральное
Парковка
Наземная
Расположение
Россия, Пенза, улица 65-летия Победы, с11
Ипотечный калькулятор
Заполните 1 анкету — получите предложения от десятков банков на специальных условиях
Программа ипотеки
Стоимость жилья, ₽
Первый взнос, ₽
Срок кредита
от 5.75%
Ставка
от 47 740 ₽
Платеж в месяц
Расчёт носит информационный характер и не является публичной офертой
Похожие объекты






3-комн. квартира, 70,7 м², 4/17 эт.





Квартира, 73,2 м², 17/22 эт.






3-комн. квартира, 70,7 м², 8/17 эт.






3-комн. квартира, 70,7 м², 10/17 эт.
Консультант по новостройкам
7 588 430 ₽
95 500 ₽/м²






