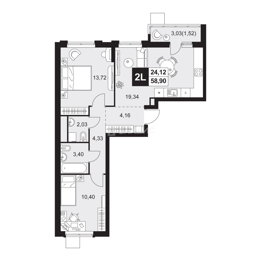
Продается 3-комн. квартира, 58.9 м²
Россия, Пенза, Первомайский район, микрорайон Тепличный
58.9 м²
Общая площадь
16 из 20
Этаж
Описание
Описания нет
О квартире
Общая площадь
58.9 м²
Подъезд
2
Этаж
16
Окна выходят
На улицу
О доме
Год постройки
2028
Этажность
20
Количество подъездов
4
Материал постройки
Кирпично-монолитный
Материал перекрытий
Монолитные
Расположение
Россия, Пенза, Первомайский район, микрорайон Тепличный
Ипотечный калькулятор
Заполните 1 анкету — получите предложения от десятков банков на специальных условиях
Программа ипотеки
Стоимость жилья, ₽
Первый взнос, ₽
Срок кредита
от 5.75%
Ставка
от 43 243 ₽
Платеж в месяц
Расчёт носит информационный характер и не является публичной офертой
Похожие объекты



3-комн. квартира, 58,9 м², 13/20 эт.



3-комн. квартира, 60,1 м², 12/20 эт.



3-комн. квартира, 58,9 м², 17/20 эт.
Консультант по новостройкам
6 873 630 ₽
116 700 ₽/м²





