Купить дом на улице Пионерская в Пензенской области
Россия, Пензенская область, Нижнеломовский район, село Кривошеевка, Пионерская улица, 30
85.1 м²
Площадь дома
12 сот
Площадь участка
Деревянный
Материал постройки
1
Этажей
Описание
Ищете место для спокойной жизни вдали от городской суеты? Тогда этот дом — идеальный выбор для вас! Расположенный в селе Кривошеевка Нижнеломовского района по ул. Пионерская.
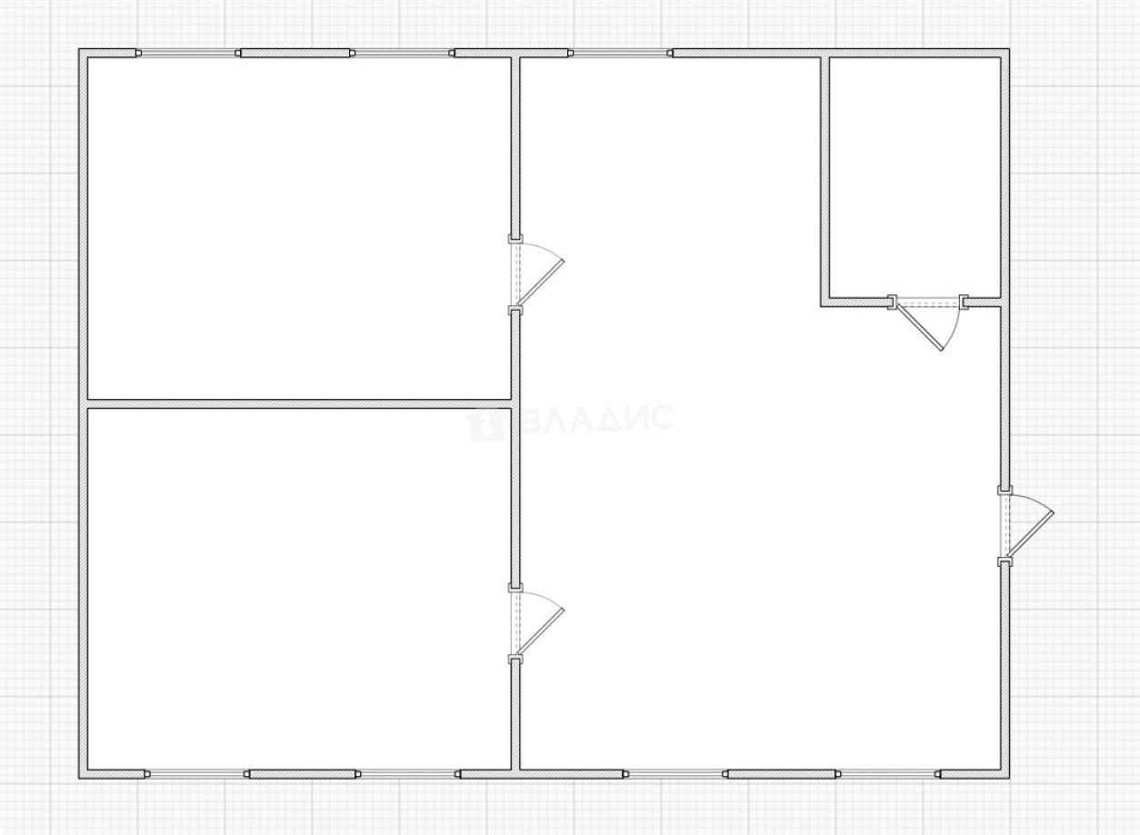
Общая площадь дома составляет 85,1 кв. м., жилая площадь — 69 кв. м.Планировка включает три комнаты площадью 20, 19 и 30 кв.м, а также просторную кухню на 10 кв.м.
Внутри выполнен качественный ремонт по евростандарту. В доме новая электрика, пластиковые окна, натяжные потолки с точечными светильниками, современный котел. Выполнена качественная стяжка пола, в кухне-гостиной напольная плитка, в комнатах ламинат. Крыша покрыта металлочерепицей, что обеспечивает надёжную защиту от непогоды. С лицевой стороны дома установлен забор с калиткой и воротами из профлиста.
Преимущества дома:
- центральное водоснабжение;
- подходит для круглогодичного проживания;
- статус участка — личное подсобное хозяйство;
- асфальтированный подъезд к участку;
- электричество, водоснабжение, газ и канализация;
- индивидуальное отопление (котёл).
Площадь земельного участка — 12 соток. Участок ухоженный, есть возможность разбить сад или огород.
Не упустите свой шанс стать владельцем этого прекрасного дома! Мы гарантируем безопасную сделку и юридическую поддержку нашим Клиентам. Поможем одобрить ипотеку с сниженной ставкой. Звоните прямо сейчас!
О доме
Год постройки
1960
Этажей в доме
1
Общая площадь
85.1 м²
Жилая площадь
69 м²
Площадь кухни
10 м²
Площадь комнат
20+19+30 м²
Материал постройки
Деревянный
Материал перекрытий
Деревянные
Материал кровли
Металлочерепица
Совмещенных санузлов
1
Об участке
Площадь участка
12 сот.
Статус участка
Личное подсобное хозяйство
Электричество
Есть
Газ
Есть
Водоснабжение
Есть
Канализация
Есть
Без благоустройства участка
Есть
Подъезд к участку
Асфальт
Расположение
Россия, Пензенская область, Нижнеломовский район, село Кривошеевка, Пионерская улица, 30
Ипотечный калькулятор
Заполните 1 анкету — получите предложения от десятков банков на специальных условиях
Программа ипотеки
Стоимость жилья, ₽
Первый взнос, ₽
Срок кредита
от 5.75%
Ставка
от 22 019 ₽
Платеж в месяц
Расчёт носит информационный характер и не является публичной офертой
Великанов Павел
Руководитель отдела
Предложите свою цену
3 500 000 ₽
41 128 ₽/м²










