Купить дом на улице Советская в Пензенской области
Россия, Пензенская область, Бессоновский район, село Грабово, Советская улица, 175
100 м²
Площадь дома
16 сот
Площадь участка
Блочный
Материал постройки
2
Этажей
Описание
Дом 2024 года постройки.
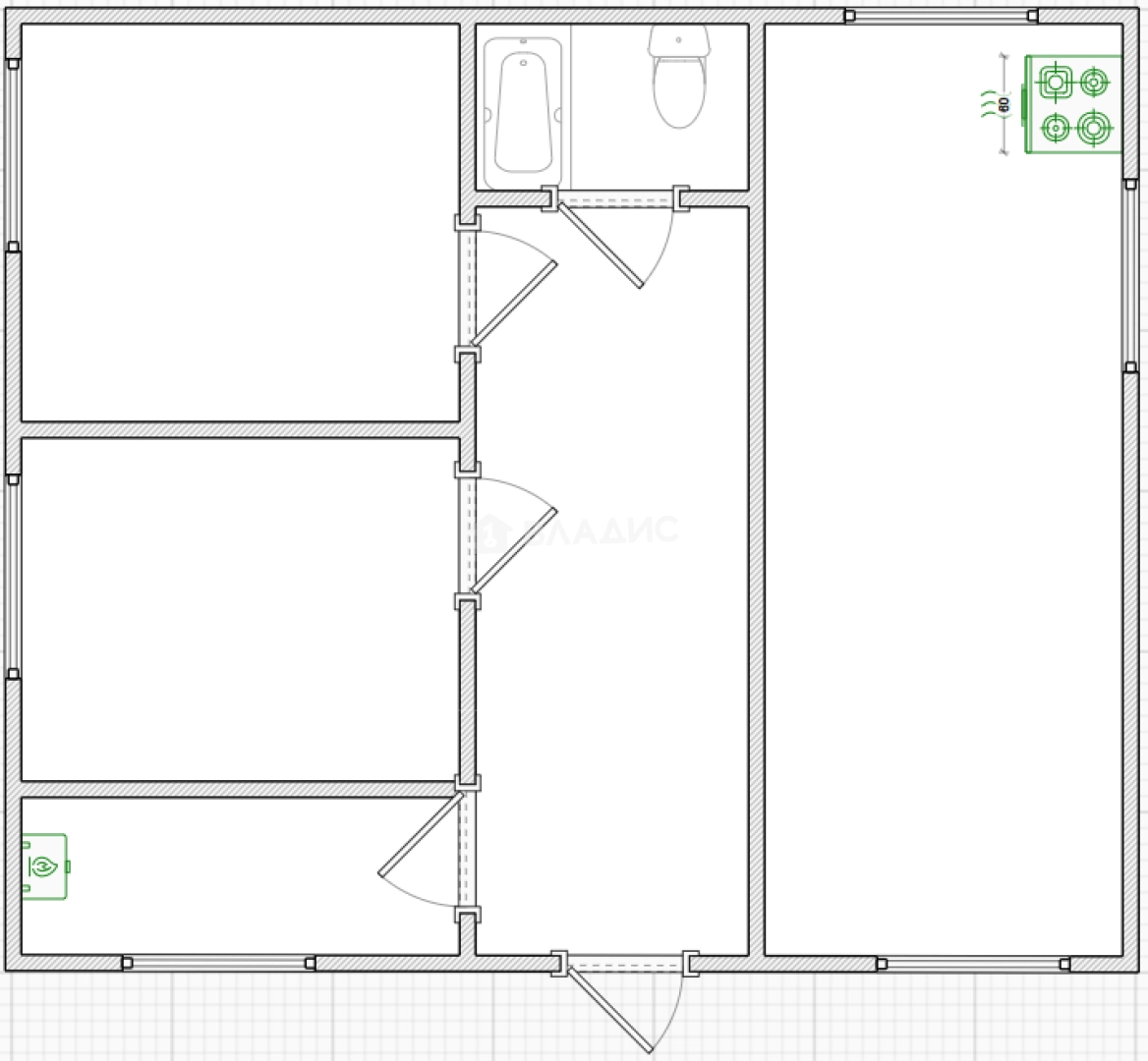
Общая площадь дома: 100 кв.м.
Площадь комнат: 20 кв.м. +20 кв.м. + 20кв.м.
Площадь кухни: 25 кв.м.
Площадь санузла: 6 кв.м.
Коридор: 9 кв.м.
Земельный участок правильной и ровной формы площадью: 16 соток. Хорошие подъездные пути, дорога асфальт. Центральное водоснабжение, индивидуальный септик, электричество 3 фазы 15 квт, газ.
Материал стен: газоблок 300 мм + 5см утеплитель .
Крыша: профлист утепленная.
Окна: ПВХ 70-го профиля с ламинацией и микропроветриванием
Дом строили для себя из качественных стройматериалов с использованием новых технологий в строительстве.
Основательный фундамент,отмостка с утеплением, по всему дому разведен теплый пол, будет установлена лестница на 2 этаж.
Второй этаж-свободная планировка.
Развитая внешняя инфраструктура: Школа, детский сад, магазины. находится в 5 минутах.
ПОМОЩЬ В ОФОРМЛЕНИИ ИПОТЕКИ ВО ВСЕХ БАНКАХ ПЕНЗЫ.
Гарантия безопасности Вашей сделки.
О доме
Год постройки
2024
Этажей в доме
2
Общая площадь
100 м²
Жилая площадь
60 м²
Площадь кухни
25 м²
Площадь комнат
20+20+20 м²
Материал постройки
Блочный
Материал перекрытий
Деревянные
Материал кровли
Профнастил
Высота потолков
2.7 м
Об участке
Площадь участка
16 сот.
Статус участка
Личное подсобное хозяйство
Электричество
Есть
Газ
Есть
Водоснабжение
Есть
Канализация
Есть
Без благоустройства участка
Есть
Подъезд к участку
Грунтовка
Расположение
Россия, Пензенская область, Бессоновский район, село Грабово, Советская улица, 175
Ипотечный калькулятор
Заполните 1 анкету — получите предложения от десятков банков на специальных условиях
Программа ипотеки
Стоимость жилья, ₽
Первый взнос, ₽
Срок кредита
от 5.75%
Ставка
от 28 310 ₽
Платеж в месяц
Расчёт носит информационный характер и не является публичной офертой
Пахомов Виталий
Агент по недвижимости
Предложите свою цену
4 500 000 ₽
45 000 ₽/м²






































































































