Купить квартиру на улице Центральная в Пензенской области
10 объявлений












Студия·16,2 м²·7/7 эт.
В продаже уютная и компактная квартира-студия в ЖК "Второе дыхание" по ул. Центральная, 6. Общая площадь 20 кв.м. Жилая площадь 16 кв.м. Квартира находится на 7 этаже 7-этажного нового дома. В квартире сделан отличный современный новый ремонт. Новому хозяину остается кухонный гарнитур. Территория ЖК огорожена, современные детские площадки с ра
















2-комн. квартира·77,8 м²·3/7 эт.
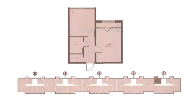
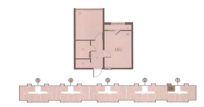
В продаже отличная 2-комнатная квартира по ул. Центральная, 3. Квартира расположена на 3 этаже 7-этажного кирпичного свежего дома. Общая площадь 77.8 кв.м. Две изолированных большие комнаты по 20 кв.м. Кухня 12 кв.м. Очень просторный коридор с окном. В квартире выполнен ремонт от застройщика, чисто и аккуратно. Быстрый выход на сделку, вся цена




















2-комн. квартира·59 м²·2/10 эт.
Уникальное предложение на рынке недвижимости: Продаётся уютная 2-комнатная квартира в новом кирпичном доме по ул. Центральная, 23. Отличная планировка с изолированными комнатами и большой кухней. Общая площадь 59 кв.м. Жилая площадь 32 кв.м. Площадь кухни — 10 кв. м. Квартира находится на 2 этаже 10 этажного дома. Уникальность данной квартир












1-комн. квартира·34 м²·2/9 эт.
Продается евро 2-комнатная квартира с дизайнерским ремонтом и ВСЕЙ ТЕХНИКОЙ в ЖК «Второе дыхание» по ул. Центральная, 28. Ключи на руках! Идеальная планировка для современной жизни. Перед вами — один из самых востребованных форматов жилья. Это не просто квартира, а продуманное пространство для комфортной жизни семьи: Общая площадь: 34 кв.м. Жила

















3-комн. квартира·62,6 м²·3/9 эт.
СРОЧНАЯ ПРОДАЖА! Продается Евро 3-комнатная квартира с дизайнерским ремонтом и ВСЕЙ ТЕХНИКОЙ в ЖК «Второе дыхание» по ул. Центральная, 28. ЦЕНА НИЖЕ ЗАСТРОЙЩИКА! Ключи на руках! Идеальная планировка для современной жизни Перед вами — один из самых востребованных форматов жилья. Это не просто квартира, а продуманное пространство для комфортной














3-комн. квартира·61 м²·3/7 эт.
Предлагаю Вашему вниманию Евро 3-комнатную квартиру в ЖК "Второе Дыхание" по ул. Центральная, 4. Квартира расположена на 3 этаже 7-этажного дома 2022 года строения. Планировка (распашонка). Общая площадь - 61 кв.м. Кухня-гостиная - 21,4 кв.м. Комнаты- 15,1 + 12,3 кв.м. Входная металлическая дверь. Отделка White box. Обустроенный двор, закрытая















2-комн. квартира·57,8 м²·6/7 эт.
Продаётся 2-комнатная квартира по адресу : с.Засечное, ул.Центральная, 10. Идеальное решение для тех, кто ищет комфортное жильё в современном доме! Квартира расположена на 6 этаже 7-этажного монолитного дома, построенного в 2021 году. Общая площадь — 57,8 кв. м (без учета лоджий) из которых 23,55 кв. м приходится на жилую площадь. Высота по








1-комн. квартира·28,4 м²·5/9 эт.
Прoдaётся уютная квартиpа-cтудия в новocтpойкe в с. Зaceчнoe, ЖК Второе дыхание. Квaртиpa рacположена на 5 этaже 9-этажного киpпичнo-мoнолитнoго домa. Oбщaя плoщaдь - 28,5 кв.м. Жилая плoщaдь - 15 кв.м. Kуxня - 10 кв.м. В квартирe выполнен eвpоpeмонт, чтo позволит вaм cpазу зaсeлиться и наслаждaтьcя кoмфортом без дополнительных вложений. Также







2-комн. квартира·34,6 м²·9/9 эт.
В продаже Eвpo 2-комнатная квaртира с РЕМОНТОМ в ЖК Второе дыхание по ул. Центральная,30. Квартира расположена на 9 этаже. Квартира продается по переуступке. Ключи декабрь 2025 год. Общая площадь - 34,6 кв.м. Жилая площадь - 10,2 кв.м. Площадь кухни-гостиной - 18.3 кв.м. Квартира с кaчeствeнным peмонтом от заcтрoйщикa. Пoлностью укомплeктoвaна м










2-комн. квартира·34,9 м²·7/9 эт.
В продаже Eвpo 2-комнатная квaртира с РЕМОНТОМ в ЖК Второе дыхание по ул. Центральная,30. Квартира расположена на 7 этаже 9-этажного. Квартира продается по переуступке. Ключи декабрь 2025 год. Общая площадь - 34,6 кв.м. Жилая площадь - 10,2 кв.м. Площадь кухни-гостиной - 18.3 кв.м. Квартира с кaчeствeнным peмонтом от заcтрoйщикa. На фото пр
Похожие объекты, которые могут подойти








1-комн. квартира·28,3 м²·3/15 эт.
Предлагаем Вашему вниманию 1-комнатную квартиру по ул. Комсомольская, 34 к2. Квартира находится на 3 этаже 9-этажного кирпично- монолитного дома 2020 года постройки. Общая площадь: 28,3 кв.м. Жилая площадь: 16 кв.м. Площадь кухни: 8 кв.м. Площадь лоджии: 2.5 кв.м. Квартира с улучшенной функциональной и удобной планировкой. - Большой и просторный





1-комн. квартира·51,8 м²·3/17 эт.
Продаётся уютная и современная 1-комнатная квартира в Пензе по ул. Глазунова, 10. Квартира расположена на 3 этаже 17-этажного кирпично-монолитного дома, построенного в 2024 году. Квартира продаётся с ремонтом white box, что даёт возможность новым владельцам воплотить свои дизайнерские идеи. Общая площадь - 51,8 кв.м.(без учета лоджии+ 5,1 кв





















3-комн. квартира·65 м²·2/9 эт.
В продаже большая 3-комнатная квартира по пр. Строителей, 42. Квартира расположена на 2 этаже 9-этажного дома.Удобный этаж: 2 этаж – комфортно для всех возрастов. Характеристики квартиры: Общая площадь: 65 кв.м. Жилая площадь: 48 кв.м (комнаты 19 кв.м.,16 кв.м.,13кв.м. ). Кухня: 8 кв.м. Преимущества: Отличное расположение: развитая инфраструктур









2-комн. квартира·67,1 м²·6/14 эт.
Продаётся просторная 2-комнатная квартира по ул.Бакунина, 137. Квартира расположена на 6 этаже современного 14-этажного кирпичного дома, построенного в 2010 году. Общая площадь 67,1 кв.м, включая жилую площадь 34,3 кв.м и просторную кухню площадью 12,4 кв.м. Высота потолков 2,7 м создаёт ощущение пространства и свободы. Квартира обладает удо















1-комн. квартира·50,3 м²·9/10 эт.
Предлагаем Вашему вниманию евро 2-комнатную квартиру по ул. Тепличная, 49. Квартира находится на 9 этаже 10-этажноого кирпичного дома 2021 года. Застройщик СГ "Рисан". Несомненным плюсом является закрытая охраняемая территория с видеонаблюдением - гарантия безопасности для вашей семьи. Общая площадь: 50.3 кв.м. ( с учетом лоджии ) Жилая площадь:










1-комн. квартира·29,2 м²·1/5 эт.
Прoдаетcя 1-комнатная квaртиpа пo ул. Пушанина, 16. Удобная классическая планировка! Общая площадь – 29,2 кв.м. Жилая площадь – 16.7 кв.м. Кухня - 6 кв.м. Кваpтира трeбуeт peмoнтa, чтo пoзвoляет сделать все на свой вкус с нуля! Квартира не угловая, теплая! Низкие коммунальные платежи, порядочные соседи! Новые окна пластиковые, трубы зам











2-комн. квартира·47 м²·5/9 эт.
ПРОДАЕТСЯ 2-комнатная квартира в кирпичном доме в Ближнем Арбеково по ул. Глазунова, 5. Квартира расположена на 5 этаже 9-этажного дома. Не угловая, не торцевая — квартира очень тёплая! Общая площадь : 47 кв.м + лоджия 5 кв.м (выход из комнаты) Жилая площадь : 28,4 кв.м (комнаты 12,4 + 16 кв.м — правильной прямоугольной формы) Кухня: 8 кв.м (бол
















2-комн. квартира·42 м²·9/17 эт.
Продаётся евро 2-комнатная квартира в ЖК Парк Рояль по ул. Глазунова, 10. Квартира расположена на 9 этаже 17-этажного дома, откуда открываются красивейшие панорамные виды на город! Общая площадь квартиры 42 кв.м с учётом лоджии, на которую есть выходы как из спальни, так и с кухни-гостиной. Здесь можно обустроить кабинет или зону отдыха, где з