Продается 1-комн. квартира, 45.3 м²
Россия, Пензенский район, Богословский сельсовет, село Богословка, Лазурная улица, 1
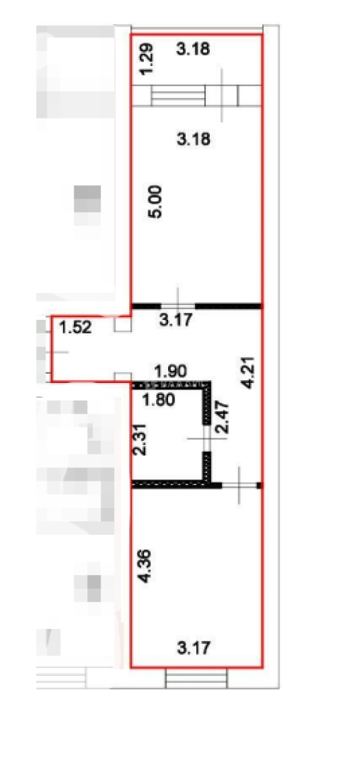
45.3 м²
Общая площадь
16 м²
Жилая площадь
13.8 м²
Площадь кухни
5 из 5
Этаж
Описание
Квартира расположена на 5 этаже 5-этажного КИРПИЧНОГО жилого дома 2024 года постройки.
В доме имеется пассажирский ЛИФТ, в связи с чем подъем на пятый этаж не составит труда. Последний этаж обеспечит вам красивый вид из окна, а также тишину и спокойствие от соседей. Планировка - распашонка.
Общая площадь: 45.3 кв.м.
Жилая площадь: 16 кв.м.
Площадь кухни: 13.8 кв.м.
Площадь санузла: 4.1 кв.м.
В квартире выполнен качественный косметический ремонт, который позволит вам сразу заехать и жить.
Установлено индивидуальное газовое отопление, а это значит, что вы сможете регулировать тепло и экономить на коммунальных платежах. Просторная лоджия дает возможность использовать ее как дополнительное место для хранения и наслаждаться красивыми видами из окна. В летнее время шикарный вид на ПРУД. У дома расположена парковка, с достаточным количеством парковочных мест.
Тихое спокойное место, вдали от городской суеты, позволит в полной мере насладиться загородной жизнью. От г. Пензы 10 минут езды на автомобиле. Остановка общественного транспорта рядом с домом.
Не упустите шанс стать собственником данной квартиры по выгодной цене! Позвоните прямо сейчас, чтобы узнать больше и записаться на просмотр!
Мы гарантируем безопасную сделку нашим клиентам. Поможем с одобрением ипотеки.
О квартире
Общая площадь
45.3 м²
Жилая площадь
16 м²
Площадь кухни
13.8 м²
Площадь комнат
16 м²
Высота потолков
2.7 м
Подъезд
1
Этаж
5
Расположение квартиры
не угловая
Окна выходят
На улицу
Совмещенных санузлов
1
О доме
Год постройки
2024
Этажность
5
Количество подъездов
2
Материал постройки
Кирпичный
Материал перекрытий
Ж/б плиты
Отопление
Индивидуальный котел
Пассажирских лифтов
1
Парковка
Наземная
Расположение
Россия, Пензенский район, Богословский сельсовет, село Богословка, Лазурная улица, 1
Ипотечный калькулятор
Заполните 1 анкету — получите предложения от десятков банков на специальных условиях
Программа ипотеки
Стоимость жилья, ₽
Первый взнос, ₽
Срок кредита
от 5.75%
Ставка
от 17 615 ₽
Платеж в месяц
Расчёт носит информационный характер и не является публичной офертой
Урвачёва Дарья
Эксперт по недвижимости
Предложите свою цену
2 800 000 ₽
61 810 ₽/м²

































